

Leitgöb Wohnbau BAUTRÄGER GMBH
004 ···
Nr. anzeigenPreise & Kosten
Provision für Käufer
provisionsfrei
Die Wohnung
Wohnanlage
Energie & Heizung
Warum sehe ich diese Anzeige? – Du siehst diese Anzeige basierend auf Ihrer Navigation auf unserer Website und den Suchkriterien, die du verwendet hast.
Weitere Energiedaten
Energieträger
Pellets
Heizungsart
Fußbodenheizung
Details
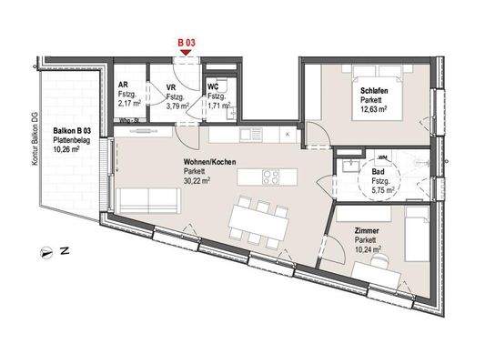
Objektbeschreibung
Wohnen in perfekter Balance
Freuen Sie sich auf pures Wohnvergnügen und hohe Wohnqualität mit der perfekten Balance zwischen ländlicher Idylle und praktischem Stadtleben. Vor der Kulisse der imposanten Berge des Steinernen Meers errichten wir am Försterweg diese 3-Zimmer Eigentumswohnung mit Balkon. In...
Weitere Informationen
Stichworte
GRZ: 0, GFZ: 0, BMZ: 0, BGF: 0, Tiefgarage vorhanden, Nutzfläche: 66,51 m², Gesamtfläche: 66,51 m², Anzahl der Schlafzimmer: 2, Anzahl Balkone: 1, Balkon-Terrassen-Fläche: 10,26 m², Anzahl der Wohn-Schlafzimmer: 1, Kellerfläche: 8,20 m², Wohnungsnr.: Top B3
Anbieter der Immobilie
Online-ID: 2mvaq5j
Referenznummer: 1545
Finde Angebote wie dieses
Günstige Immobilienfinanzierung einfach online berechnen
Persönliches Angebot berechnenWarum sehe ich diese Werbung? – Du siehst diese Werbung basierend auf Deiner Navigation auf unserer Website und der von Dir verwendeten Suchkriterien.
Diese Werbung wird bezahlt von durchblicker
Werbung melden
Hier geht es zu unserem Impressum, den Allgemeinen Geschäftsbedingungen, den Hinweisen zum Datenschutz und nutzungsbasierter Online-Werbung.