

WvM Vertriebsgesellschaft mbH
022 ···
Nr. anzeigenDieses Angebot ist Teil des Neubauprojekts
Leyendeckerstraße 17-27
Preise & Kosten
Provision für Käufer
provisionsfrei
Lage
Die Leyendeckerstraße liegt im pulsierenden Stadtteil Ehrenfeld, einem der vielfältigsten und dynamischsten Viertel Kölns. Hier trifft der historische Charme ehemaliger Industriegebäude auf die Modernität stilvoller Neubauten - eine Mischung, die der Straße ihren unverwechselbaren Charakter verleiht.
Die Umgebung...
Die Wohnung
Wohnungslage
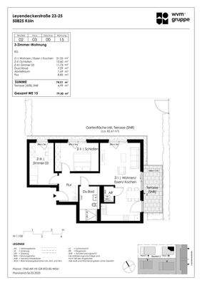
Erdgeschoss
Wohnanlage
Das Neubauprojekt
Energie & Heizung
Warum sehe ich diese Anzeige? – Du siehst diese Anzeige basierend auf Ihrer Navigation auf unserer Website und den Suchkriterien, die du verwendet hast.
Energieausweistyp
Bedarfsausweis
Gebäudetyp
Wohngebäude
Wesentliche Energieträger
Luftwärmepumpe
Gültigkeit
13.12.2024 bis 12.12.2034
Effizienzklasse
B
Endenergiebedarf
68,70 kWh/(m²·a)
Weitere Energiedaten
Heizungsart
Fußbodenheizung, Luft-/Wasser-Wärmepumpe
Details
Objektbeschreibung
Leyendecker - Grün, familiär, nachhaltig
Im Leyendecker entstehen 91 moderne Wohnungen, die Komfort, Design und Nachhaltigkeit vereinen. Mit Wohnflächen von ca. 47 bis 140 m² bieten sie Raum für jede Lebensphase - von der ersten eigenen Wohnung bis hin zum Zuhause für Familien. Kapitalanleger finden hier ebenfalls...
Ausstattung
Diese 3-Zimmer-Wohnung erstreckt sich über ca. 79,50 m² und verbindet modernes Wohnen mit einem gemütlichen Außenbereich. Die großzügige Terrasse mit eigenem Garten ist ein echtes Highlight und lädt zum Verweilen ein. Der Wohn- und Essbereich bietet dank großer Fensterfronten viel Tageslicht. Zwei Schlafzimmer bieten Platz...
Weitere Informationen
Sonstiges
ENERGIEPFLICHTANGABEN GEM. § 87 GEG:
Art des Energieausweises: Bedarfsausweis
Wert des Energiebedarfs: 68,7 kWh/(m²*a)
Heizungsart: Fußbodenheizung
Energieträger: Luftwärmepumpe
Baujahr: 2024
Energieeffizienzklasse: B
Keine Maklerprovision für den Käufer!
Bei den Visualisierungen...
Anbieter der Immobilie
Online-ID: 2mvbr5j
Referenznummer: Leyendeckerstr. 25 - 02.03.00.15
Finde Angebote wie dieses
Hier geht es zu unserem Impressum, den Allgemeinen Geschäftsbedingungen, den Hinweisen zum Datenschutz und nutzungsbasierter Online-Werbung.