

Mehrfamilienhaus zum Kauf • als Kapitalanlage geeignet980000 €2.988 €/m²14 Zimmer • 328 m² • 494 m² Grundstück
980000 €
2.988 €/m²
14 Zimmer • 328 m² • 494 m² Grundstück
vermietetes Vierfamilienhaus in bevorzugter Wohnlage
Merkmale
- Bezug: Nach Vereinbarung
- vermietet
- 2 Geschosse
- 494 m² Grundstück
- EinbaukĂĽche
- 4 Stellplätze: Außen-Stellplatz
- Bodenbelag: Fliesen, Laminat, Kunststoff
- Fenster: Kunststoff
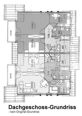
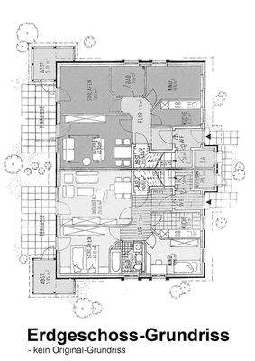
Grundrisse
Grundrisse
1 / 3
Realisiere Dein Projekt
Bausubstanz und Energie
Energieausweis
C
- Baujahr1999
- Zustand der ImmobilieGepflegt
- HeizungsartZentralheizung
- EnergieträgerGas
Preisdetails
Kaufpreis
980000 €
2.987,80 €/m²
Provision für Käufer
Die Käufercourtage beträgt 5 % inkl. der gesetzlichen MwSt.
Siehe bitte auch Sonstiges!
Siehe bitte auch Sonstiges!
Geschätzte Gesamtkosten
1.083.586 €1
Kaufpreis
980.000 €
Kaufnebenkosten
103.586 €
2Notarkosten (1,5%)
14.700 €
Grunderwerbsteuer (5%)
49.000 €
Provision für Käufer (3,57%)
34.986 €
Grundbucheintrag (0,5%)
4.900 €
1Der angezeigte Wert ist eine automatisch berechnete Schätzung von immowelt.
2Bei den Angaben handelt es sich um ortsübliche Werte. Individuelle Kosten können abweichen.
Lage

Auering 77-79, Neu Wulmstorf (21629)
Weitere Informationen
Weitere Services
Lust auf eine Besichtigung?
Eine Frage zur Immobilie?
Ăśber den Anbieter
Makler Puttkammer & TeamMaklerbĂĽro
Rudolf-Diesel-StraĂźe 1, 21629 Neu Wulmstorf
6 Jahre Partnerschaft

Herr Thomas ZufallDein Kontakt
Weitere Unterlagen
Online-ID: 2mvc956
Referenznummer: 12622124343


Makler Puttkammer & Team
Wie zufrieden bist du mit dieser Seite (nicht mit der Immobilie selbst)?