
RE/MAX Lörrach, Müllheim, Freiburg
Herr Dr. Jörg Thalmann
004 ···
Nr. anzeigenPreise & Kosten
Provision für Käufer
3,57 % inkl. gesetzl. MwSt. (19%) inkl. MwSt.
Lage
Die Wohnung befindet sich in Lörrach, eingebettet in eine Gegend, die Urbanität und Natur harmonisch miteinander verbindet. Nur wenige Gehminuten trennen Sie von der malerischen Kulisse des Grüttparks, der zu erholsamen Spaziergängen und vielfältigen Freizeitaktivitäten einlädt. Die Anbindung an den öffentlichen Nahverkehr...
Die Wohnung
Derzeitige Nutzung
vermietet
Wohnanlage
Energie & Heizung
Warum sehe ich diese Anzeige? – Du siehst diese Anzeige basierend auf Ihrer Navigation auf unserer Website und den Suchkriterien, die du verwendet hast.
Energieausweistyp
Verbrauchsausweis
Gebäudetyp
Wohngebäude
Wesentliche Energieträger
GAS
Gültigkeit
bis 22.06.2028
Effizienzklasse
D
Endenergieverbrauch
107,00 kWh/(m²·a)
Weitere Energiedaten
Heizungsart
Etagenheizung
Details
Objektbeschreibung
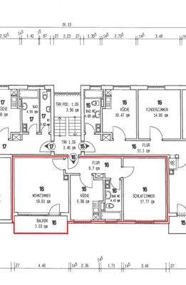
Die im Jahr 1962 erbaute Immobilie wurde über die Jahre umfassend saniert und präsentiert sich in einem gepflegten Zustand. Mit einer Wohnfläche von ca. 60 m² bietet die Wohnung idealen Wohnkomfort auf zwei Zimmern, darunter ein großzügiges Schlafzimmer.
Der offene Wohnbereich gestattet einen direkten Zugang zum Balkon...
Preisinformation
1 Stellplatz
Soll-Mieteinnahmen pro Jahr: 7.440,00 EUR
Weitere Informationen
Stichworte
Stellplatz vorhanden, Anzahl der Schlafzimmer: 1, Anzahl der Badezimmer: 1, Anzahl Balkone: 1, Bundesland: Baden-Württemberg
Anbieter der Immobilie
RE/MAX Lörrach, Müllheim, Freiburg
Tumringer Straße 284, 79539 Lörrach
Online-ID: 2mvcr52
Referenznummer: 1067-485-1-JT
Finde Angebote wie dieses
Hier geht es zu unserem Impressum, den Allgemeinen Geschäftsbedingungen, den Hinweisen zum Datenschutz und nutzungsbasierter Online-Werbung.