
ohne-makler.net - Immobilien selbst vermarkten
Angebot vom Eigentümer
Kontaktiere den Anbieter schriftlich, es ist keine Telefonnummer hinterlegt.
Preise & Kosten
Provision für Käufer
provisionsfrei
Lage
Die Immobilie liegt in ruhiger und familienfreundlicher Lage im beliebten Stuttgarter Stadtteil Kaltental (Bezirk Süd). Es handelt sich um eine Anliegerstraße mit wenig Verkehr, umgeben von gepflegten Wohnhäusern und Grünflächen. Einkaufsmöglichkeiten
für den täglichen Bedarf, Kindergärten, Schulen sowie Ärzte und...
Die Wohnung
Wohnungslage
2. Geschoss (Dachgeschoss)
Bezug
nach Absprache
Wohnanlage
Energie & Heizung
Warum sehe ich diese Anzeige? – Du siehst diese Anzeige basierend auf Ihrer Navigation auf unserer Website und den Suchkriterien, die du verwendet hast.
Energieausweistyp
Bedarfsausweis
Gebäudetyp
Wohngebäude
Effizienzklasse
H
Endenergiebedarf
308,00 kWh/(m²·a)
Weitere Energiedaten
Energieträger
Gas
Heizungsart
Etagenheizung
Details
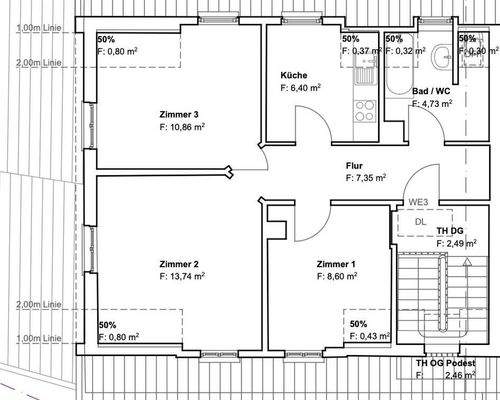
Objektbeschreibung
Die sehr gepflegte 3-Zimmer-Wohnung präsentiert sich in einem einladenden Zustand und ist sowohl für den sofortigen Eigenbezug als auch zur Vermietung bestens geeignet. Helle, lichtdurchflutete Räume schaffen eine freundliche Wohnatmosphäre. Die Wohnung verfügt über eine moderne Einbauküche, ein Tageslichtbad mit Badewanne...
Ausstattung
Keller, Vollbad, Einbauküche, Laminat, Fliesen
Bemerkungen:
. Sehr gepflegter Zustand - bereit zum Einzug oder zur Vermietung
. 3 Zimmer, Küche, Bad, Kellerraum
. Gas-Etagenheizung
. Lichtdurchflutete helle Räume
. Einbauküche
. Bad mit Badewanne und Tageslicht
. Gute...
Weitere Informationen
Sonstiges
Heizungsart: Etagenheizung
Energieträger: Gas
Makleranfragen nicht erwünscht. Nach § 7 UWG sind unaufgeforderte Kontaktaufnahmen durch Makler ohne ausdrückliche Einwilligung des Empfängers verboten!
ohne-makler (OM) ist weder Anbieter noch Vermittler der Immobilie. OM betreibt eine Plattform...
Anbieter der Immobilie
ohne-makler.net - Immobilien selbst vermarkten
Humboldtstr. 25 A, 21509 Glinde
Angebot vom Eigentümer
Dein Ansprechpartner
Kontaktiere den Anbieter schriftlich, es ist keine Telefonnummer hinterlegt.
Online-ID: 2mvds5n
Referenznummer: 389988
Finde Angebote wie dieses
Hier geht es zu unserem Impressum, den Allgemeinen Geschäftsbedingungen, den Hinweisen zum Datenschutz und nutzungsbasierter Online-Werbung.