
ImmoFair Rostock GmbH
Herr Daniel Vollbrecht
Kontaktiere den Anbieter schriftlich, es ist keine Telefonnummer hinterlegt.
Preise & Kosten
Provision für Käufer
6,95 % inkl. MwSt. vom Kaufpreis
Lage
Die Immobilie liegt in zentraler Lage der Kleinstadt Schwaan. Die Stadt zählt rund 5.000 Einwohner und fungiert als regionales Zentrum zwischen Rostock und Güstrow. Das Umfeld ist geprägt von einer gewachsenen Bebauung mit Wohn- und kleinteiligen Gewerbenutzungen sowie einer stabilen Nachfrage nach...
Das Haus
Kategorie
Mehrfamilienhaus
Baujahr
1925
Energie & Heizung
Warum sehe ich diese Anzeige? – Du siehst diese Anzeige basierend auf Ihrer Navigation auf unserer Website und den Suchkriterien, die du verwendet hast.
Energieausweis: für diesen Gebäudetyp nicht notwendig
Weitere Energiedaten
Energieträger
Gas
Heizungsart
Zentralheizung
Details
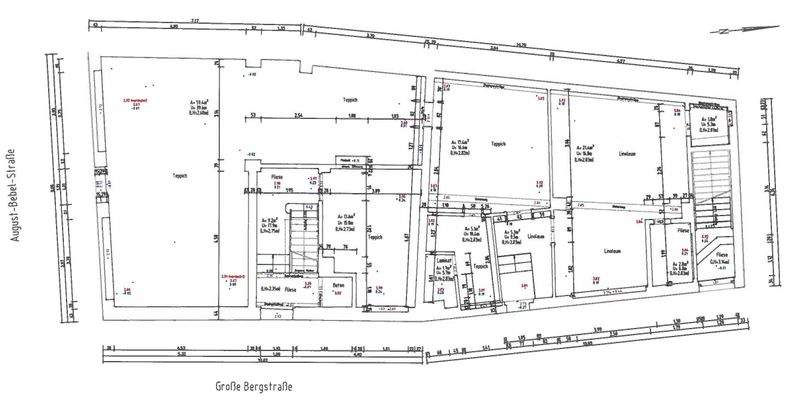
Objektbeschreibung
Hier angeboten werden ein sanierungsbedürftiges Wohn- und Geschäftshaus in zentraler Lage von Schwaan mit deutlichem Entwicklungs- und Wertsteigerungspotenzial.
Die Immobilie verfügt über eine Mischnutzung aus Wohnen und Gewerbe. Im Erdgeschoss befindet sich eine Gewerbeeinheit (Friseurbetrieb), die aktuell vermietet...
Ausstattung
Mehrfamilienhaus mit Wohn- und Gewerbenutzung
Eine Gewerbeeinheit im Erdgeschoss (Friseurbetrieb)
Eine Wohnung vermietet, weitere Flächen mit Entwicklungspotenzial
Klassische Grundrissstruktur mit großzügigen Raumzuschnitten
Massives Mauerwerk
Satteldach mit Dachgauben
Teilweise...
Weitere Informationen
Sonstiges
Der Makler-Vertrag mit uns und/oder unserem Beauftragten kommt durch schriftliche Vereinbarung oder durch die Inanspruchnahme unserer Maklertätigkeit auf der Basis des Objekt-Exposés und seiner Bedingungen zustande. Die Käufercourtage in Höhe von 6,95 % auf den Kaufpreis einschließlich gesetzlicher Mehrwertsteuer...
Anbieter der Immobilie
Herr Daniel Vollbrecht
Dein Ansprechpartner
Kontaktiere den Anbieter schriftlich, es ist keine Telefonnummer hinterlegt.
Online-ID: 2mvfn5z
Finde Angebote wie dieses
Hier geht es zu unserem Impressum, den Allgemeinen Geschäftsbedingungen, den Hinweisen zum Datenschutz und nutzungsbasierter Online-Werbung.