

netterMakler GmbH
Herr netter Makler
039 ···
Nr. anzeigenPreise & Kosten
Kaution
1530
Abschreibung/Anlage
Denkmalschutz-Afa
Warum sehe ich diese Anzeige? – Du siehst diese Anzeige basierend auf Ihrer Navigation auf unserer Website und den Suchkriterien, die du verwendet hast.
Lage
Die Löbbeckestraße gehört zu den beliebten Wohnlagen in Blankenburg. Einkaufsmöglichkeiten, ÖPNV, Restaurants und die historische Altstadt sind schnell erreichbar. Die Umgebung ist geprägt von gepflegten Altbauten und ruhigen Nachbarschaften.
Die Wohnung
Bezug
01.01.2026
Derzeitige Nutzung
vermietet
Wohnanlage
Energie & Heizung
Warum sehe ich diese Anzeige? – Du siehst diese Anzeige basierend auf Ihrer Navigation auf unserer Website und den Suchkriterien, die du verwendet hast.
Energieausweis: für diesen Gebäudetyp nicht notwendig
Weitere Energiedaten
Energieträger
Gas
Heizungsart
Etagenheizung
Details
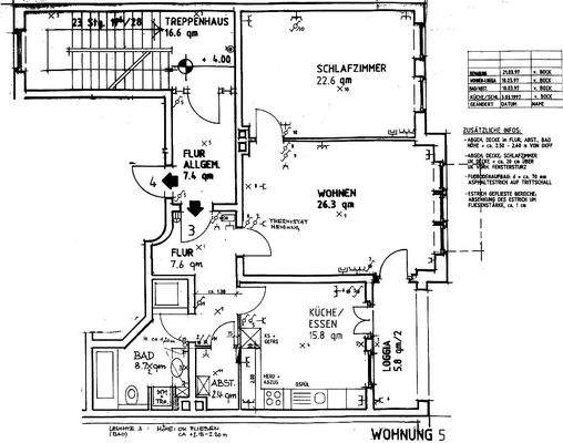
Objektbeschreibung
Willkommen in dieser außergewöhnlich charmanten Altbauwohnung im Herzen von Blankenburg!
Die Wohnung befindet sich im zweiten Obergeschoss eines architektonisch eindrucksvollen Mehrfamilienhauses und vereint historische Details mit modernem Wohnkomfort.
Bereits das Betreten des Hauses ist ein Erlebnis: Das breite...
Ausstattung
? Großzügiges Wohnzimmer mit direktem Zugang zur Loggia
? Loggia vom Wohnzimmer und der Küche begehbar
? Hohe Decken & große Fenster für viel Licht
? Küche mit Essbereich
? Helles Badezimmer mit Wanne und separater Dusche
? Etagenheizung mit einer Junkers-Gastherme - effiziente, individuelle...
Weitere Informationen
Sonstiges
Adresse: Löbbeckestraße 7, 2. OG links, 38889 Blankenburg
Wohnfläche: ca. 90 m²
Zimmer: 2,5
Besonderheiten: Loggia, hohe Fenster, Bad mit Wanne & Dusche, Etagenheizung (Junkers-Gastherme), beeindruckendes Altbau-Treppenhaus, großer Kellerraum,
Alle Angaben sind ohne Gewähr und basieren...
Anbieter der Immobilie

Online-ID: 2mvfy5b
Referenznummer: NM168
Finde Angebote wie dieses
Hier geht es zu unserem Impressum, den Allgemeinen Geschäftsbedingungen, den Hinweisen zum Datenschutz und nutzungsbasierter Online-Werbung.