
Werde Eigentümer GmbH
Herr Frank Jaskorski
+49 ···
Nr. anzeigenPreise & Kosten
Provision für Käufer
provisionsfrei
Lage
DIE KULTURBRAUEREI, DER MAUERPARK & GANZ VIEL POSITIVES LEBENSGEFÜHL
Inmitten des lebhaften und beliebten Stadtteils Prenzlauer Berg in Berlin liegt die Schönhauser Allee 151, eine Straße gespickt mit einem faszinierenden Mix aus historischem Charme und moderner Vielfalt. Diese pulsierende Umgebung bietet eine...
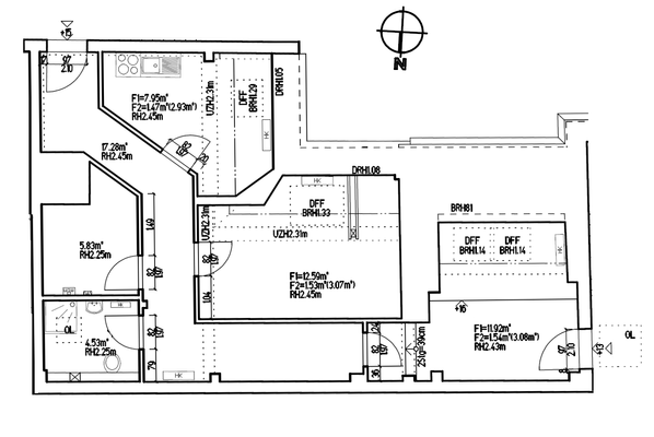
Die Wohnung
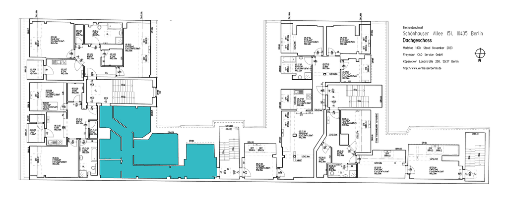
Wohnungslage
5. Geschoss (Dachgeschoss)
Bezug
nach Absprache
Energie & Heizung
Warum sehe ich diese Anzeige? – Du siehst diese Anzeige basierend auf Ihrer Navigation auf unserer Website und den Suchkriterien, die du verwendet hast.
Energieausweistyp
Bedarfsausweis
Gebäudetyp
Wohngebäude
Wesentliche Energieträger
Gas
Gültigkeit
25.03.2025 bis 24.03.2035
Effizienzklasse
F
Endenergiebedarf
180,99 kWh/(m²·a)
Weitere Energiedaten
Energieträger
Gas
Details
Objektbeschreibung
Unser Büro arbeitet im Zeitraum vom 17.12. bis einschließlich 05.01. in reduzierter Besetzung.
Nach Ihrer Anfrage erhalten Sie automatisch ein Exposé mit allen wichtigen Informationen zur Immobilie.
Sollten Sie anschließend weiterhin Interesse haben, senden Sie uns bitte eine E-Mail. Wir melden uns schnellstmöglich bei...
Weitere Informationen
Sonstiges
Die Bilder zeigen den aktuellen Zustand der Einheit und des Gebäudes. Die durch die WEG durchgeführten und in Planung befindlichen Maßnahmen sind im Preis bereits enthalten.
Dieses Angebot richtet sich sowohl an Selbstnutzer zum zeitnahen Bezug als auch an Kapitalanleger zur zeitnahen Vermietung...
Anbieter der Immobilie
Werde Eigentümer GmbH
Töpferwall 2a, 17207 Röbel/Müritz
Online-ID: 2mvh95r
Referenznummer: WE251205-02-WE33
Finde Angebote wie dieses
Hier geht es zu unserem Impressum, den Allgemeinen Geschäftsbedingungen, den Hinweisen zum Datenschutz und nutzungsbasierter Online-Werbung.