
McMakler GmbH
Ihr McMakler Team
080 ···
Nr. anzeigenPreise & Kosten
Provision für Käufer
Die Provision i.H.v. 2,50 % inkl. MwSt. ist mit Kaufvertragsbeurkundung fällig, sofern der Verkaufspreis über 83.000,00 € liegt.
Liegt der Verkaufspreis dagegen bei/unter 83. Weitere Informationen siehe Provisionshinweis.
Lage
Lage: Attraktive Lage in Oelde mit besten Bedingungen für Eigennutzer oder Investoren
Bildung und Betreuung: Stressfreier Morgen dank Kindergarten und Schule in fußläufiger Entfernung
Nahversorgung: Einkauf schnell erledigt: Supermarkt und Postfiliale in max. 5 Gehminuten
Anbindung: Gut erreichbar: Bahnhof und...
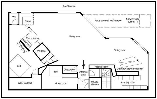
Die Wohnung
Kategorie
Penthouse
Wohnungslage
2. Geschoss
Bezug
nach Absprache
Wohnanlage
Energie & Heizung
Warum sehe ich diese Anzeige? – Du siehst diese Anzeige basierend auf Ihrer Navigation auf unserer Website und den Suchkriterien, die du verwendet hast.
Weitere Energiedaten
Energieträger
Gas
Heizungsart
Zentralheizung
Details
Objektbeschreibung
Objektnr: 1021645
Diese Immobilie ist kein gewöhnliches Zuhause für die Familie! Sie ist ein Juwel, das in Ihre erlesene Sammlung gehört - der Porsche unter den Immobilien. Ein einzigartiges Designobjekt, reserviert ausschließlich für die A-Liste. Ein wahres Abenteuer für all jene, die nicht nur wohnen, sondern leben...
Ausstattung
+ In Oelde gelegen, zur Vermietung, aber auch für Selbstnutzer - komfortabler Personenaufzug
+ Erholung im Freien dank einer Terrasse
+ Besonderer Komfort dank Top-Zustand
+Wohnung mit einer Einbauküche und Natursteinböden
+ Ein Kellerraum, eine Hausreinigung und ein Winterdienst versprechen Sorgenfreiheit
Weitere Informationen
Provisionshinweis
Die Provision i.H.v. 2,50 % inkl. MwSt. ist mit Kaufvertragsbeurkundung fällig, sofern der Verkaufspreis über 83.000,00 € liegt.
Liegt der Verkaufspreis dagegen bei/unter 83.000,00 €, ist die fest vereinbarte Mindestprovision i.H.v. mind. 5.950,00 € inkl. MwSt. mit Kaufvertragsbeurkundung fällig...
Anbieter der Immobilie
McMakler GmbH
Am Postbahnhof 17, 10243 Berlin
Online-ID: 2mvhg5d
Referenznummer: fd83c68d3c
Finde Angebote wie dieses
Hier geht es zu unserem Impressum, den Allgemeinen Geschäftsbedingungen, den Hinweisen zum Datenschutz und nutzungsbasierter Online-Werbung.