

BIDDEX Immobiliengesellschaft mbH
Herr Robert Verowski
+49 ···
Nr. anzeigenPreise & Kosten
Provision für Käufer
provisionsfrei
Lage
Ruhe und Natur inmitten des lebendigen Treibens:
Im pulsierenden Szeneviertel Prenzlauer Berg erwacht ein Gründerzeit-Altbau aus dem Dornröschenschlaf. Unter der Leitung eines erfahrenen Architekten entsteht ein grünes Refugium mit ganz eigenem Charakter und Charme. Mit dem Erhalt zeitgemäßer Elemente wird die...
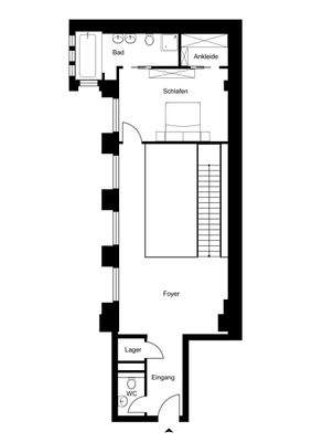
Die Wohnung
Kategorie
Maisonette
Wohnungslage
Erdgeschoss
Bezug
01.07.2026
Wohnanlage
Energie & Heizung
Warum sehe ich diese Anzeige? – Du siehst diese Anzeige basierend auf Ihrer Navigation auf unserer Website und den Suchkriterien, die du verwendet hast.
Energieausweistyp
Bedarfsausweis
Gebäudetyp
Wohngebäude
Wesentliche Energieträger
Gas
Effizienzklasse
C
Endenergiebedarf
91,80 kWh/(m²·a)
Weitere Energiedaten
Energieträger
Gas
Heizungsart
Fußbodenheizung
Details
Objektbeschreibung
Das Ensemble strahlt großbürgerliche Eleganz und einen Hauch von Patina aus. Doch für heutige Stadtbewohner, die gehobene Wohnansprüche haben, erfüllt dieses Objekt genau diese Ansprüche. Durch eine Modernisierung nach zeitgemäßen Standards präsentiert sich die Immobilie als urbane Oase mit eigenem Stil und Charakter. Einmal...
Ausstattung
Objekt:
+ Komplettsanierung Vorderhaus und Seitenflu?gel
+ Umbau Hinterhaus zu großzu?gigen Loftwohnungen
+ Begru?nte Innenho?fe mit Spielfla?che und Fahrradstellpla?tzen
+ Anbau neuer Aufzüge
Erdgeschosswohnung
+ Ruhige Innenhoflage
+ Maisonettewohnung EG+KG
+ Galerie erreichbar über...
Weitere Informationen
Sonstiges
Bei den Bildern handelt es sich um Beispielvisualisierungen.
Diese Wohnung ist aktuell als 3-Zimmerwohnung geplant, allerdings kann ein viertes Zimmer (und somit das 3. Schlafzimmer) im aktuellen Küchenbereit im unteren Bereich der Wohnung geplant werden.
Stichworte
Anzahl der Schlafzimmer: 3...
Dokumente
Anbieter der Immobilie
BIDDEX Immobiliengesellschaft mbH
Marburger Straße 17, 10789 Berlin

Online-ID: 2mvja5s
Referenznummer: B10019/WE0019
Finde Angebote wie dieses
Hier geht es zu unserem Impressum, den Allgemeinen Geschäftsbedingungen, den Hinweisen zum Datenschutz und nutzungsbasierter Online-Werbung.