

Thomas W. Lang Diplom Immobilienwirt D.I.A/Bankkaufmann
Herr Thomas Lang
094 ···
Nr. anzeigenPreise & Kosten
Provision für Käufer
3,57% vom Kaufpreis inkl. MwSt.
Lage
Diese Wohnung befindet sich ca. 2 km südlich der Regensburger Altstadt in Kumpfmühl.
In unmittelbarer Nähe sind befinden sich zahlreiche Einkaufsmöglichkeiten.
Mit dem Auto oder den öffentlichen Verkehrsmitteln erreichen Sie in nur wenigen Minuten die Regensburger Innenstadt sowie das Universitätsgelände.
Die Wohnung
Wohnungslage
2. Geschoss
Bezug
frei (Schlüssel im Büro)
Wohnanlage
Energie & Heizung
Warum sehe ich diese Anzeige? – Du siehst diese Anzeige basierend auf Ihrer Navigation auf unserer Website und den Suchkriterien, die du verwendet hast.
Energieausweistyp
Verbrauchsausweis
Gebäudetyp
Wohngebäude
Baujahr laut Energieausweis
1999
Gültigkeit
bis 05.04.2029
Effizienzklasse
F
Endenergieverbrauch
161,00 kWh/(m²·a)
Weitere Energiedaten
Energieträger
Gas
Heizungsart
Zentralheizung
Details
Objektbeschreibung
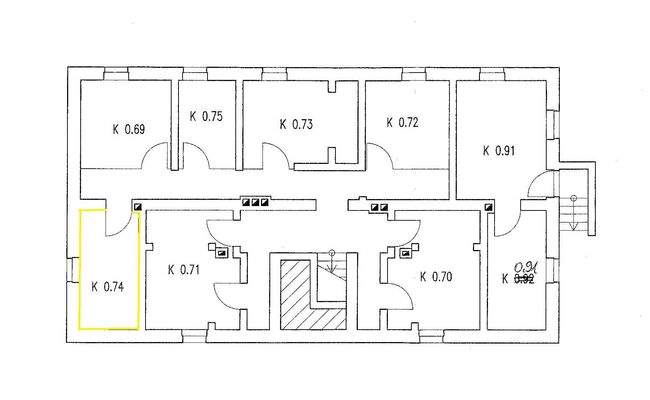
Freie 2-Zi. ETW in einer Wohnanlage
mit grünem Innenhof südlich der Altstadt von Regensburg
Ort: 93051 Regensburg
Lage: ca. 2 km südlich der Innenstadt von Regensburg
Baujahr: 1936
Wohnfläche: ca. 64,35 m²
Etage: 2. OG (kein Lift!)
Aufteilung: Wohnen, Schlafen, Wohnküche...
Weitere Informationen
Besonderheiten
- Modernisierungen
2005: Fenster Kunststoff 2-fach Verglasung und Rollläden
Innentüren weiß
Laminat Böden mit Trittschalldämmung
Decken mit 4 cm Wärmedämmung und Abdichtungsfolie
Stromverteilung
Wasserleitungen Kunststoff
...
Anbieter der Immobilie

Online-ID: 2mvjk5f
Referenznummer: AP3345
Finde Angebote wie dieses
Weitere Immobilien
Hier geht es zu unserem Impressum, den Allgemeinen Geschäftsbedingungen, den Hinweisen zum Datenschutz und nutzungsbasierter Online-Werbung.