
ohne-makler.net - Immobilien selbst vermarkten
Privat von Clemens Sponagel
Kontaktiere den Anbieter schriftlich, es ist keine Telefonnummer hinterlegt.
Preise & Kosten
Provision für Käufer
provisionsfrei
Lage
Die Wohnung befindet sich in einer ruhigen und zugleich gut angebundenen Wohnlage im beliebten Hamburger Stadtteil Rahlstedt.
Die Umgebung ist geprägt von einer gepflegten Mischung aus Einfamilienhäusern und kleinen Mehrfamilienhäusern, die ein angenehmes, harmonisches Wohnumfeld schafft.
Die grüne Umgebung mit...
Die Wohnung
Wohnungslage
Erdgeschoss
Bezug
sofort
Wohnanlage
Energie & Heizung
Warum sehe ich diese Anzeige? – Du siehst diese Anzeige basierend auf Ihrer Navigation auf unserer Website und den Suchkriterien, die du verwendet hast.
Energieausweistyp
Bedarfsausweis
Gebäudetyp
Wohngebäude
Endenergiebedarf
121,00 kWh/(m²·a)
Weitere Energiedaten
Energieträger
Gas
Heizungsart
Zentralheizung
Details
Objektbeschreibung
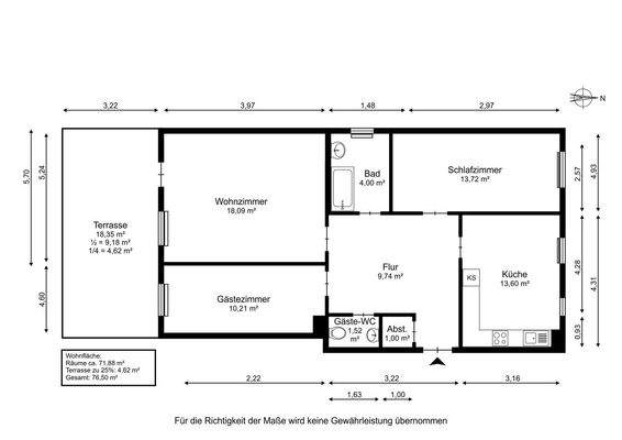
Diese hochwertig und umfassend sanierte 3-Zimmer-Wohnung befindet sich im Hochparterre eines gepflegten Mehrfamilienhauses mit nur sechs Wohneinheiten. Das Gebäude steht auf einem großzügigen Grundstück, das viel Raum, Abstand und ein angenehm offenes Wohnumfeld bietet.
Die Wohnung überzeugt durch ihren sehr gut...
Ausstattung
Terrasse, Garten, Keller, Sonstiges (s. Text)
Bemerkungen:
- Hochwertig und umfassend renovierte Wohnung
- Großzügige Wohnküche - ideal als Ess- und Lebensmittelpunkt
- Großes Wohnzimmer mit Zugang zur Südterrasse
- Schlafzimmer und Kinderzimmer, beide gut geschnitten
- Badezimmer mit Badewanne und...
Preisinformation
1 Carportplatz, Kaufpreis: 7.000,00 EUR
Weitere Informationen
Sonstiges
Heizungsart: Zentralheizung
Energieträger: Gas
Provisionsfrei direkt vom Käufer
In dem Hausgeld sind die Rücklagen (183€ / mtl.)sowie Heizkosten bereits enthalten.
Makleranfragen nicht erwünscht. Nach § 7 UWG sind unaufgeforderte Kontaktaufnahmen durch Makler ohne ausdrückliche...
Anbieter der Immobilie
ohne-makler.net - Immobilien selbst vermarkten
Humboldtstr. 25 A, 21509 Glinde
Privat von Clemens Sponagel
Dein Ansprechpartner
Kontaktiere den Anbieter schriftlich, es ist keine Telefonnummer hinterlegt.
Online-ID: 2mvjn5h
Referenznummer: 410429
Finde Angebote wie dieses
Hier geht es zu unserem Impressum, den Allgemeinen Geschäftsbedingungen, den Hinweisen zum Datenschutz und nutzungsbasierter Online-Werbung.