

Allgäuer Immo Fuchs
Herr Andreas Bauske
+49 ···
Nr. anzeigenPreise & Kosten
Provision für Käufer
Bitte beachte, das Angebot kann bei Vertragsabschluss die Zahlung einer Provision beinhalten. Weitere Informationen erhältst Du vom Anbieter.
Lage
Die Immobilie befindet sich in Pfronten-Steinach, einem charmanten Ortsteil der Gemeinde im Allgäu, bekannt für seine malerische Landschaft und die Nähe zu den Allgäuer Alpen. Diese Lage bietet eine perfekte Balance zwischen Natur und Annehmlichkeiten des täglichen Lebens, was sie besonders attraktiv für unterschiedliche...
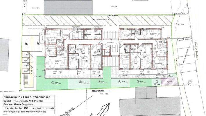
Die Wohnung
Wohnanlage
Energie & Heizung
Warum sehe ich diese Anzeige? – Du siehst diese Anzeige basierend auf Ihrer Navigation auf unserer Website und den Suchkriterien, die du verwendet hast.
Energieausweistyp
Verbrauchsausweis
Gebäudetyp
Wohngebäude
Baujahr laut Energieausweis
2025
Wesentliche Energieträger
ERDWAERME
Gültigkeit
bis 10.03.2035
Effizienzklasse
A+
Endenergieverbrauch
25,00 kWh/(m²·a)
Weitere Energiedaten
Energieträger
Erdwärme
Heizungsart
Fußbodenheizung
Details
Objektbeschreibung
Wohnung mit Möglichkeit zur Nutzung als Ferienwohnung.
Auf Wunsch kümmert sich eine Agentur für Sie um die Organisation oder Einrichtung
Diese exquisite Neubauwohnung verspricht ein modernes Wohngefühl in einem ansprechenden Design. Mit einer großzügigen Wohnfläche von 44,05 m² verteilt auf vier Zimmer, bietet diese...
Ausstattung
Diese exklusive Immobilie bietet modernste Ausstattung und höchsten Wohnkomfort. Die Beheizung erfolgt über eine effiziente Luft/Wasser-Wärmepumpe, die in Kombination mit einer Fußbodenheizung für ein angenehmes Raumklima sorgt. Die großzügige Wohnfläche von 44,05 m² verteilt sich auf vier durchdacht geschnittene Zimmer...
Preisinformation
1 Tiefgaragenstellplatz, Kaufpreis: 29.800,00 EUR
Weitere Informationen
Sonstiges
Klimaanlage auf Wunsch 10.000 €
Lift von TG bis Dachgeschoß
Sat-Anlage
TG Stellplätze
Stromlademöglichkeit für Kfz vorgesehen( Sonderwunsch)
Wärmepumpe auch zum kühlen
Grundwasserversickerung Rigolen auf dem Grundstück
Barrierefrei
17 weitere Wohnungen...
Anbieter der Immobilie

Online-ID: 2mvl455
Referenznummer: 2024-12-117-07
Finde Angebote wie dieses
Hier geht es zu unserem Impressum, den Allgemeinen Geschäftsbedingungen, den Hinweisen zum Datenschutz und nutzungsbasierter Online-Werbung.