
HERON Immobilien GmbH
Herr Benjamin van Husen
004 ···
Nr. anzeigenPreise & Kosten
Provision für Käufer
Die Provision i. H. v. 5,95 % ist nach Notartermin verdient und mit ordnungsgemäßer Rechnung fällig. inkl. MwSt.
Lage
Das Haus liegt in der unteren Altstadt von Tübingen, einem der gefragtesten Stadtviertel der Universitätsstadt. Die Fußgängerzone wird ab 2026 bis zur nächsten Querstraße erweitert. Somit liegt das Haus nicht mitten in einer Fußgängerzone, sondern genau an deren Rand. Das steigert die Attraktivität sowohl für Wohnzwecke als...
Das Haus
Baujahr
1875
Bezug
Ab sofort
Derzeitige Nutzung
vermietet
Energie & Heizung
Warum sehe ich diese Anzeige? – Du siehst diese Anzeige basierend auf Ihrer Navigation auf unserer Website und den Suchkriterien, die du verwendet hast.
Energieausweistyp
Bedarfsausweis
Gebäudetyp
Wohngebäude
Baujahr laut Energieausweis
1875
Wesentliche Energieträger
ERDGAS_SCHWER
Gültigkeit
bis 10.01.2035
Effizienzklasse
E
Endenergiebedarf
159,90 kWh/(m²·a)
Weitere Energiedaten
Energieträger
Gas
Heizungsart
Zentralheizung
Details
Objektbeschreibung
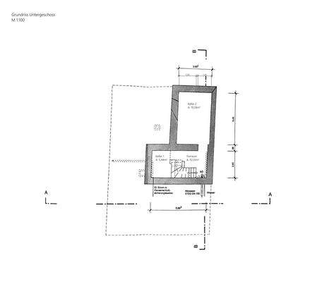
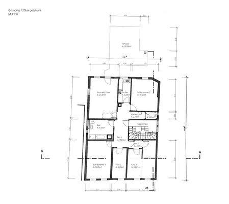
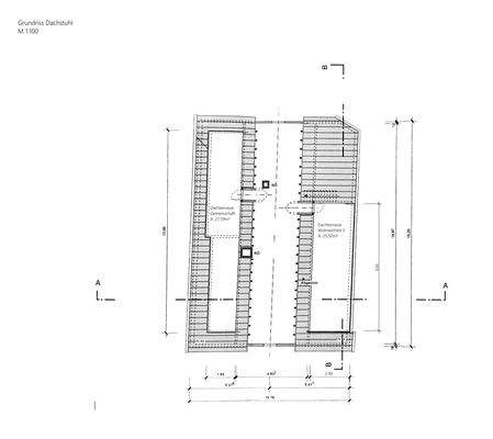
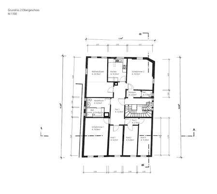
Dieses gepflegte Wohn- und Geschäftshaus aus dem Jahr 1875 überzeugt mit seiner seltenen Kombination aus hervorragender Altstadtlage, durchdachter Nutzung und fortlaufender Modernisierung. Das Haus erstreckt sich über drei Vollgeschosse plus Erdgeschoss, ist teilunterkellert und verfügt über einen Schuppen im rückwärtigen...
Ausstattung
Die 'Top 10'-Kaufgründe für diese Immobilie:
1. Drei separate (Dach-)Terrassen, zwei davon mit herrlichem Ausblick über die Altstadt
2. 1A-Lage in der Tübinger Altstadt, ab 2026 direkt an der erweiterten Fußgängerzone
3. Attraktive Gewerbeeinheit mit ca. 78 qm Nutzfläche, vielseitig verwendbar
4. Laufende...
Weitere Informationen
Sonstiges
Wir versenden das Exposé mit der virtuellen Besichtigung und der Anschrift des Hauses automatisch nach Erhalt Ihrer Anfrage an die angegebene E-Mail-Adresse. Falls diese E-Mail in Ihrem Postfach unauffindbar ist, überprüfen Sie bitte Ihren SPAM-Ordner.
Stichworte
Nutzfläche: 170,00 m², Anzahl der...
Anbieter der Immobilie
HERON Immobilien GmbH
Stuttgarter Straße 96, 70736 Fellbach
Online-ID: 2mvl85p
Referenznummer: 25-1TÜ00125-2
Finde Angebote wie dieses
Hier geht es zu unserem Impressum, den Allgemeinen Geschäftsbedingungen, den Hinweisen zum Datenschutz und nutzungsbasierter Online-Werbung.