
Castellanum
Firma Castellanum Brixen - Bressanone
003 ···
Nr. anzeigenPreise & Kosten
Provision für Käufer
Bitte beachte, das Angebot kann bei Vertragsabschluss die Zahlung einer Provision beinhalten. Weitere Informationen erhältst Du vom Anbieter.
Das Haus
Kategorie
Reihenmittelhaus
Baujahr
1976
Bezug
01.10.2026
Energie & Heizung
Warum sehe ich diese Anzeige? – Du siehst diese Anzeige basierend auf Ihrer Navigation auf unserer Website und den Suchkriterien, die du verwendet hast.
Energieausweistyp
Verbrauchsausweis
Gebäudetyp
Wohngebäude
Effizienzklasse
C
Weitere Energiedaten
Energieträger
Fernwärme
Heizungsart
Fußbodenheizung
Details
Objektbeschreibung
Die Immobilie liegt in Wiesen im Pfitschtal, umgeben von Bergen und Natur. Der Bahnhof ist zu Fuß erreichbar. Die Skigebiete Ladurns und Ratschings-Jaufen sind nur wenige Autominuten entfernt. Im Sommer beginnen viele Wanderwege direkt vor der Haustür. Sterzing mit Geschäften und Restaurants ist ebenfalls in der Nähe.
Das...
Weitere Informationen
Stichworte
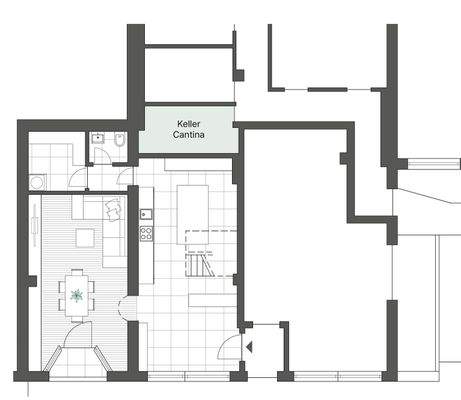
Stellplatz vorhanden, Verkaufsfläche: 140,00 m², Anzahl der Schlafzimmer: 2, Anzahl der Badezimmer: 2, Anzahl Balkone: 1, Balkon-Terrassen-Fläche: 7,00 m², Kellerfläche: 6,80 m², 2 Etagen
Anbieter der Immobilie
Castellanum
Trattengasse 7, 37042 Brixen (BZ)
Online-ID: 2mvmd56
Referenznummer: BX13794
Finde Angebote wie dieses
Hier geht es zu unserem Impressum, den Allgemeinen Geschäftsbedingungen, den Hinweisen zum Datenschutz und nutzungsbasierter Online-Werbung.