
ANA IMMOexzellent e.U.
Frau Gordana Sirovina
+43 ···
Nr. anzeigenPreise & Kosten
Provision für Käufer
3% des Kaufpreises zzgl. 20% USt.
Lage
Diese gegenständliche Liegenschaft befindet sich in einer ruhigen Siedlung in Umhausen im Ortsteil Lehn Platzl (Östen). Einkaufsmöglichkeiten wie Hofer, M-Preis, Billa sowie das Zentrum sind in wenigen Minuten zu erreichen. Die nächste Bushaltestelle ist ca. 50 m an der westlich gelegenen Ötztalbudesstraße entfern. Umhausen...
Das Haus
Kategorie
Mehrfamilienhaus
Baujahr
2018
Bezug
Nach Vereinbarung
Energie & Heizung
Warum sehe ich diese Anzeige? – Du siehst diese Anzeige basierend auf Ihrer Navigation auf unserer Website und den Suchkriterien, die du verwendet hast.
Heizwärmebedarf (HWB)
36,00 kWh/(m²·a)
Weitere Energiedaten
Haustyp
Massivhaus
Energieträger
Gas, Solar
Heizungsart
Fußbodenheizung, Zentralheizung
Details
Objektbeschreibung
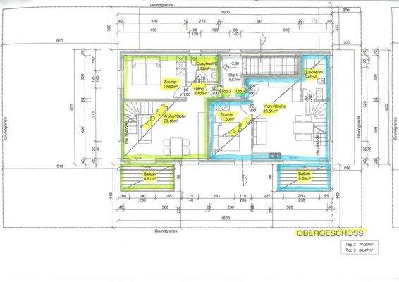
Dieses zum Verkauf stehende Mehrfamilienhaus ist vollständig unterkellert und umfasst insgesamt drei parifizierte Wohneinheiten.
Das Gebäude gliedert sich in ein Kellergeschoss, ein Erdgeschoss, ein Obergeschoss sowie ein Dachgeschoss (siehe Grundrisspläne). Die im Erdgeschoss gelegene Wohneinheit TOP 1 ist sowohl über...
Preisinformation
6 Stellplätze
Weitere Informationen
Stichworte
Carport vorhanden, Stellplatz vorhanden, Süd-Balkon/Terrasse, Rolladen, Nutzfläche: 326,51 m², Anzahl Balkone: 2, Anzahl Terrassen: 1, Bundesland: Tirol
Sonstiges: EDV-Verkabelung
Anbieter der Immobilie
ANA IMMOexzellent e.U.
Meinhardstraße 16, 6020 INNSBRUCK
Online-ID: 2mvms5n
Referenznummer: OBGC20251211113428725b5a17cfff7
Finde Angebote wie dieses
Günstige Immobilienfinanzierung einfach online berechnen
Persönliches Angebot berechnenWarum sehe ich diese Werbung? – Du siehst diese Werbung basierend auf Deiner Navigation auf unserer Website und der von Dir verwendeten Suchkriterien.
Diese Werbung wird bezahlt von durchblicker
Werbung melden
Hier geht es zu unserem Impressum, den Allgemeinen Geschäftsbedingungen, den Hinweisen zum Datenschutz und nutzungsbasierter Online-Werbung.