Hansy GmbH

Herr Rene Hansy

Renovierungsbedürftiges Apartmenthaus (3 Häuser!) - Ihr neues Investitionsprojekt! Wohnen, Praxis oder Ordination

€ 910.000
Kaufpreis
k.A.
Wohnfläche
k.A.
Zimmer
830 m²
Grundstücksfl. ca.
Finanzierung berechnen mit durchblicker

Der Anbieter dieses Objekts hat gegenüber der AVIV Germany GmbH als Betreiber dieses Online-Marktplatzes erklärt, nicht als Unternehmer im Sinne des § 1 KSchG zu handeln. Die im Verbraucherschutzrecht der Union verankerten Verbraucherrechte (insbesondere Informationspflichten und Rücktritts- bzw. Widerrufsrechte) finden auf den Vertrag zwischen dem Anbieter des Objekts und Ihnen (dem Interessenten) keine Anwendung.

Gewerblicher Anbieter

Der Anbieter dieses Objekts hat gegenüber der AVIV Germany GmbH als Betreiber dieses Online-Marktplatzes erklärt, als Unternehmer im Sinne des § 1 KSchG zu handeln.

AdresseStraße nicht freigegeben
2540 Bad Vöslau 
Auf Karte ansehen

Preise & Kosten

Kaufpreis € 910.000 Preis/m² € 2.169,61

Provision für Käufer

3% des Kaufpreises zzgl. 20% USt.

Lage

Dieses charmante Apartmenthaus bei 2540 Bad Vöslau besticht durch seine ideale Lage im Südosten. In unmittelbarer Nähe finden Sie alles, was das Herz begehrt: Ärzte, Schulen, Kindergärten sowie Bäckereien und Banken sind bequem erreichbar. Ein Geldautomat und die Post sind nur einen kurzen Fußweg entfernt. Die gute Anbindung...

Mehr anzeigen

Das Haus

Baujahr

1985

  • Zustand: Neubau, renovierungsbedürftig / sanierungsbedürftig
  • Terrasse
  • 6 Stellplätze
  • Bad mit Wanne und Dusche
  • Einbauküche
  • Böden: Fliesenboden, Parkett
  • Anschlüsse: Kabelanschluss
  • barrierefrei, WG-geeignet

Energie & Heizung

Weitere Energiedaten

Energieträger

Gas

Heizungsart

Etagenheizung

Details

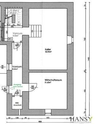
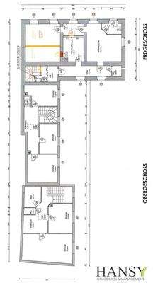
Objektbeschreibung

Willkommen in Ihrem zukünftigen Arbeitsplatz oder Zuhause - Dieses Apartmenthaus (3 Häuser) ehemals als Kindergarten genutzt stehen in der malerischen Stadt Bad Vöslau, Niederösterreich. Dieses großzügige Objekt bietet Ihnen eine beeindruckende Fläche von 419,43 m² und wartet darauf, von Ihnen in neuem Glanz erstrahlt zu...

Mehr anzeigen

Preisinformation

6 Stellplätze

Weitere Informationen

Stichworte
Stellplatz vorhanden, Nutzfläche: 419,43 m², Anzahl Terrassen: 3, Bundesland: Niederösterreich, 2 Etagen

Anbieter der Immobilie

Partner

Hansy GmbH

Sauerhofstr.10, 2500 BADEN

user

Herr Rene Hansy

Dein Ansprechpartner

Anbieter-Website Anbieter-Profil Anbieter-Impressum

Online-ID: 2mvna5m

Referenznummer: OBGC20251207201753147d595d2b33f

Finde Angebote wie dieses

imageimageimage

Günstige Immobilienfinanzierung einfach online berechnen

Persönliches Angebot berechnen

Hier geht es zu unserem Impressum, den Allgemeinen Geschäftsbedingungen, den Hinweisen zum Datenschutz und nutzungsbasierter Online-Werbung.