Portugall Immobilien

Herr Uwe Portugall

Kontaktiere den Anbieter schriftlich, es ist keine Telefonnummer hinterlegt.

Reihenmittelhaus mit kleinem Garten, in ruhiger Lage von Dortmund Dorstfeld

€ 198.000
Kaufpreis
102 m²
Wohnfläche ca.
4
Zimmer
193 m²
Grundstücksfl. ca.

Der Anbieter dieses Objekts hat gegenüber der AVIV Germany GmbH als Betreiber dieses Online-Marktplatzes erklärt, nicht als Unternehmer im Sinne des § 1 KSchG zu handeln. Die im Verbraucherschutzrecht der Union verankerten Verbraucherrechte (insbesondere Informationspflichten und Rücktritts- bzw. Widerrufsrechte) finden auf den Vertrag zwischen dem Anbieter des Objekts und Ihnen (dem Interessenten) keine Anwendung.

Gewerblicher Anbieter

Der Anbieter dieses Objekts hat gegenüber der AVIV Germany GmbH als Betreiber dieses Online-Marktplatzes erklärt, als Unternehmer im Sinne des § 1 KSchG zu handeln.

AdresseStraße nicht freigegeben
44149 Dortmund 
(Dorstfeld)
Auf Karte ansehen

Preise & Kosten

Kaufpreis € 198.000

Provision für Käufer

3,57% incl. Mwst. Käufercourtage

Lage

Sehr beliebtes und ruhiges Wohngebiet mit guter Infrastruktur in einem süd-westlichen Vorort Dortmunds.

Das Haus

Kategorie

Reihenmittelhaus

Baujahr

1920

Bezug

sofort

Derzeitige Nutzung

frei

  • Zustand: renovierungsbedürftig / sanierungsbedürftig
  • voll unterkellert
  • Terrasse
  • Bad mit Fenster, Wanne und Dusche
  • Einbauküche
  • Fenster: Kunststofffenster
  • Weitere Räume: Wasch-Trockenraum

Energie & Heizung

A+
A
B
C
D
E
F
G
H
0 25 50 75 100 125 150 175 200 225 250 +

Energieausweistyp

Bedarfsausweis

Gebäudetyp

Wohngebäude

Baujahr laut Energieausweis

1920

Wesentliche Energieträger

Gas

Effizienzklasse

H

Endenergiebedarf

360,00 kWh/(m²·a)

Weitere Energiedaten

Energieträger

Gas

Heizungsart

offener Kamin, Zentralheizung

Details

Objektbeschreibung

Renovierungsbedürftiges Reihenmittelhaus in 1 1/2 geschossiger Bauweise, mit Satteldach und Vollkeller.
Die Fassaden in dieser beliebten Siedlung stehen unter Denkmalschutz.

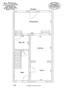
EG: Wohn-Esszimmer mit Gussofen / Küche mit Einbauküche / Diele / Wintergarten / Terrasse / Bad, Dusche, WC mit Fenster

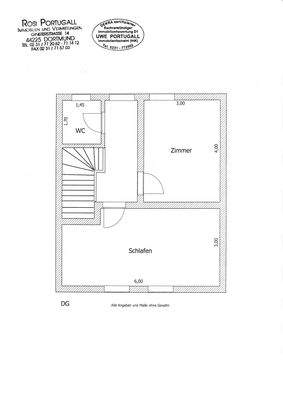
DG...

Mehr anzeigen

Ausstattung

Gasheizung mit Gastherme (2009 erneuert)
Bedarfsausweis (150kwh/m²/a) Energieeffizienzklasse E
Thermofenster (ca. 2006 erneuert)
Elektrik ca. 2006 erneuert
Vollkeller
Schöner, gut nutzbarer, ebener Garten mit Zugang zu einem Wirtschaftsweg.
Kaufpreis incl. Ofen und Einbauküche

Weitere Informationen

Teilen Sie uns bitte Ihre Kontaktdaten mit, wenn Sie sich für dieses Haus interessieren. Wir übersenden Ihnen dann gerne ein Expose mit der Adresse des Objektes und vereinbaren einen Termin zur Besichtigung für Sie.
Verkaufen? Wir stellen Ihnen gerne unseren über 50jährigen Erfahrungsschatz zur Verfügung.
Die...

Mehr anzeigen

Anbieter der Immobilie

Partner

Portugall Immobilien

im Durchschnitt  4,20  Sterne
(bei 6 Bewertungen)

Ginsterstr. 14, 44225 Dortmund

user

Herr Uwe Portugall

Dein Ansprechpartner

Kontaktiere den Anbieter schriftlich, es ist keine Telefonnummer hinterlegt.

Anbieter-Profil Anbieter-Impressum

Online-ID: 2mvnr56

Finde Angebote wie dieses

imageimageimage

Hier geht es zu unserem Impressum, den Allgemeinen Geschäftsbedingungen, den Hinweisen zum Datenschutz und nutzungsbasierter Online-Werbung.