

Gründer Immobilien
Herr Ralf Gründer
049 ···
Nr. anzeigenPreise & Kosten
Provision für Käufer
provisionsfrei
Lage
Das Objekt befindet sich in Walchum, einer idyllischen Gemeinde im schönen Emsland. Die Umgebung ist geprägt von viel Natur, freundlichen Nachbarn und einer hervorragenden Lebensqualität.
Walchum bietet alles, was man zum täglichen Leben benötigt: Einkaufsmöglichkeiten, Ärzte, Apotheke, Kindergarten, Grundschule und...
Das Haus
Kategorie
Einfamilienhaus
Baujahr
1920
Bezug
nach Vereinbarung
Energie & Heizung
Warum sehe ich diese Anzeige? – Du siehst diese Anzeige basierend auf Ihrer Navigation auf unserer Website und den Suchkriterien, die du verwendet hast.
Weitere Energiedaten
Haustyp
Massivhaus
Energieträger
Gas
Heizungsart
offener Kamin
Details
Objektbeschreibung
Dieses geschichtsträchtige Einfamilienhaus aus dem Jahr 1920 wartet darauf, wieder zu neuem Leben erweckt zu werden! Ursprünglich als Lehrerhaus erbaut, strahlt es noch heute den besonderen Charakter vergangener Zeiten aus - ein echtes Liebhaberstück mit Herz und Geschichte.
Mit einer Wohnfläche von ca. 135 m² bietet das...
Ausstattung
Dieses charmante Einfamilienhaus vereint den nostalgischen Charakter eines historischen Gebäudes mit vielen liebevollen Details, die auf ein gemütliches Zuhause hindeuten. Auch wenn einige Bereiche modernisiert werden sollten, bietet das Haus bereits heute eine solide Grundsubstanz und zahlreiche Besonderheiten, die es von...
Preisinformation
2 Stellplätze
Weitere Informationen
Sonstiges
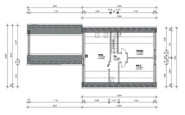
Wohnflächenaufteilung:
Erdgeschoss:
Diele ca. 9,65 m²
Wohn-Esszimmer ca. 15,51 m²
Fernsehzimmer ca. 13,04 m²
Küche ca. 10,63 m²
Schlafzimmer ca. 15,33 m²
Treppenaufgang ca. 8,74 m²
Badezimmer ca. 8,83 m²
Zwischenflur ca. 5,57 m²
Sommergarten ca. 36,23 m²
(Nicht in der...
Anbieter der Immobilie
Gründer Immobilien
Haupstraße 97, 26892 Dörpen

Online-ID: 2mvnu55
Referenznummer: 8450#CMHriC
Finde Angebote wie dieses
Hier geht es zu unserem Impressum, den Allgemeinen Geschäftsbedingungen, den Hinweisen zum Datenschutz und nutzungsbasierter Online-Werbung.