

IPM UG (haftungsbeschränkt)
Herr Marko Will
004 ···
Nr. anzeigenPreise & Kosten
Provision für Käufer
provisionsfrei
Lage
Das angebotene Grundstück befindet sich in einem Siedlungsgebiet und ist unbebaut. Es zeichnet sich durch seine gute, ruhige und ländliche Lage direkt mit allen Möglichkeiten des täglichen Bedarfs. Die Terrasse mit sehr guter Lage, lässt Sie an ruhigen Tagen entspannen.
Die notwendigen Einkaufsmöglichkeiten und Schulen...
Das Haus
Kategorie
Einfamilienhaus
Baujahr
2025
Energie & Heizung
Warum sehe ich diese Anzeige? – Du siehst diese Anzeige basierend auf Ihrer Navigation auf unserer Website und den Suchkriterien, die du verwendet hast.
Weitere Energiedaten
Haustyp
Fertighaus
Heizungsart
Fußbodenheizung, Luft-/Wasser-Wärmepumpe
Details
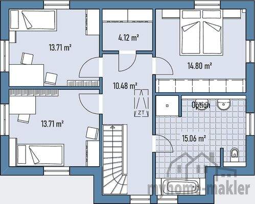
Objektbeschreibung
Direkt im wunderschönen Ort liegt dieses Familienparadies. Das stilvolle Einfamilienhaus ist Teil eines modernen und gepflegten Ensembles von Stadt- und Gartenhofhäusern. Der Gebäudekomplex wird in mit Holzständer Bauweise mit neuester Energieeffizient und nachhaltig erbaut und kann je nach Wunsch von KFW 55-40 plus...
Ausstattung
Das Haus verfügt über eine Lüftungsanlage mit Wärmerückgewinnung, was einen erheblichen Wohnkomfort verbunden mit geringen Heizkosten ohne fossile Brennstoffe verspricht. Die Heizung erfolgt zentral für die gesamte Anlage über eine neue moderne Luftwärmepumpe die mit einer Photovoltaikanlage kombiniert werden kann. DENKEN SIE...
Weitere Informationen
Sonstiges
Angebotspreis *Berechnungsbeispiel: Inkl. Haus Technikfertig mit Baugrundstück, ohne Baunebenkosten und Grundstückskaufnebenkosten.
Die Abbildungen zeigen zum Teil Sonderausstattungen. Flächenangaben nach DIN 277. Änderungen des Preises oder der Ausstattungen, sowie Irrtümer oder Zwischenverkauf sind...
Anbieter der Immobilie

Online-ID: 2mvpb5s
Referenznummer: 00630-MW
Finde Angebote wie dieses
Hier geht es zu unserem Impressum, den Allgemeinen Geschäftsbedingungen, den Hinweisen zum Datenschutz und nutzungsbasierter Online-Werbung.