
Schantl ITH Immobilientreuhand GmbH
Herr Samir Agha-Schantl
004 ···
Nr. anzeigenPreise & Kosten
Provision für Käufer
3% des Kaufpreises zzgl. 20% USt.
Lage
Die Lage besticht durch eine perfekte öffentliche Anbindung!
Öffis: Straßenbahn 1, 6, 18, 62 / Bus 14A, N6 / Bahnhof Matzleinsdorfer Platz REX1, REX2, R3
Die Liegenschaft befindet sich quasi direkt beim wunderschönen ca. 4ha großen Waldmüllerpark und in unmittelbarar Gehdistanz von zahlreichen Supermärkten, Shops und...
Das Renditeobjekt
Kategorie
Wohnanlage
Baujahr
1993
Bezug
befristet vermietet
Energie & Heizung
Warum sehe ich diese Anzeige? – Du siehst diese Anzeige basierend auf Ihrer Navigation auf unserer Website und den Suchkriterien, die du verwendet hast.
Heizwärmebedarf (HWB)
43,52 kWh/(m²·a)
Gesamtenergieeffizienz (fGEE)
1,15
Weitere Energiedaten
Energieträger
Gas
Heizungsart
Zentralheizung
Details
Objektbeschreibung
Cashflow im Paket - Mehr Wohnungen, Mehr Mieter, Mehr Money! Ca. 4,34% Rendite + Tolle Raumaufteilung + Attraktiv befristet vermietet + Perfekte Infrastruktur und öffentliche Anbindung!
Ihr Vorteil: Rund 50.000 Menschen leben und arbeiten im Einzugsgebiet des Matzleinsdorfer Platzes und werden zukünftig...
Weitere Informationen
Stichworte
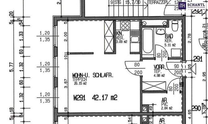
Fahrradraum, Wohnfläche: 923,76 m², Nutzfläche: 923,76 m², Anzahl der Badezimmer: 21, Anzahl der separaten WCs: 21, Kellerfläche: 92,00 m², Bundesland: Wien, 9 Etagen
Anbieter der Immobilie

Schantl ITH Immobilientreuhand GmbH
Messendorferstraße 71a, 8041 Graz
Online-ID: 2mvpd55
Referenznummer: OBGC20251102124112116496f9cdf50
Finde Angebote wie dieses
Günstige Immobilienfinanzierung einfach online berechnen
Persönliches Angebot berechnenWarum sehe ich diese Werbung? – Du siehst diese Werbung basierend auf Deiner Navigation auf unserer Website und der von Dir verwendeten Suchkriterien.
Diese Werbung wird bezahlt von durchblicker
Werbung melden
Hier geht es zu unserem Impressum, den Allgemeinen Geschäftsbedingungen, den Hinweisen zum Datenschutz und nutzungsbasierter Online-Werbung.