
Crozilla.com
Trgostan
+38 ···
Nr. anzeigenPreise & Kosten
Provision für Käufer
Bitte beachte, das Angebot kann bei Vertragsabschluss die Zahlung einer Provision beinhalten. Weitere Informationen erhältst Du vom Anbieter.
Die Immobilie
Zu diesem Angebot wurden vom Anbieter keine weiteren Daten hinterlegt. Für weitere Informationen bitte den Anbieter kontaktieren.
Nach Informationen fragenDetails
Objektbeschreibung
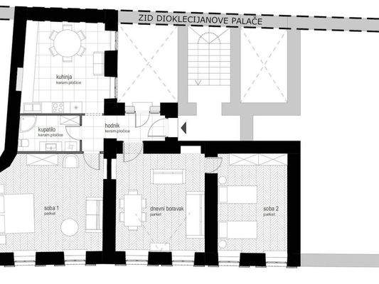
Lijepi dvosobni komforni stan povrsine 92 m2, smjesten na 3. katu povijesne zgrade u strogom centru Splita, koji se sastoji od dvije spavace sobe, dnevnog boravka, kuhinje s blagovaonicom i kupaonice, s jednim zidom Dioklecijanove palace, visokih stropova, svijetao, potpuno namjesten i opremljen, idealan i za stanovanje i za...
Weitere Informationen
Stichworte
Anzahl der Schlafzimmer: 2, Anzahl der Badezimmer: 1, 1 Etagen
Anbieter der Immobilie
Crozilla.com
Nova cesta 60, 10000 ZAGREB
Online-ID: 2mvpn5m
Referenznummer: 18594267_0
Finde Angebote wie dieses
Hier geht es zu unserem Impressum, den Allgemeinen Geschäftsbedingungen, den Hinweisen zum Datenschutz und nutzungsbasierter Online-Werbung.