

Annette Schuster Vermietung
Frau Annette Schuster
Kontaktiere den Anbieter schriftlich, es ist keine Telefonnummer hinterlegt.
Preise & Kosten
Kaution
3 Kaltmieten oder Mietkautionsversicherung
Warum sehe ich diese Anzeige? – Du siehst diese Anzeige basierend auf Ihrer Navigation auf unserer Website und den Suchkriterien, die du verwendet hast.
Lage
Die Immobilie befindet sich im Dresdner Stadtteil Gompitz, einer grünen und familienfreundlichen Wohnlage im Westen der Landeshauptstadt. Der Bereich rund um den Tummelsgrund zeichnet sich durch eine ruhige Wohnatmosphäre, gepflegte Nachbarschaften sowie eine lockere Bebauung mit viel Grün aus.
Dank der Nähe zur...
Die Wohnung
Wohnungslage
Erdgeschoss
Bezug
15.12.2025
Wohnanlage
Energie & Heizung
Warum sehe ich diese Anzeige? – Du siehst diese Anzeige basierend auf Ihrer Navigation auf unserer Website und den Suchkriterien, die du verwendet hast.
Energieausweistyp
Verbrauchsausweis
Gebäudetyp
Wohngebäude
Baujahr laut Energieausweis
1993
Wesentliche Energieträger
Heizöl
Gültigkeit
22.11.2018 bis 22.11.2028
Effizienzklasse
D
Endenergieverbrauch
114,00 kWh/(m²·a)
Weitere Energiedaten
Energieträger
Öl
Heizungsart
Zentralheizung
Details
Objektbeschreibung
Das freistehende Mehrfamilienhaus wurde 1993 in solider Bauweise errichtet und umfasst insgesamt 9 Wohneinheiten. Die gepflegte und ruhige Wohnanlage überzeugt durch ihre klare Struktur, ein freundliches Erscheinungsbild sowie ein angenehm grünes Umfeld.
Im November / Dezember 2025 wurde die angebotene 2-Raum-Wohnung...
Ausstattung
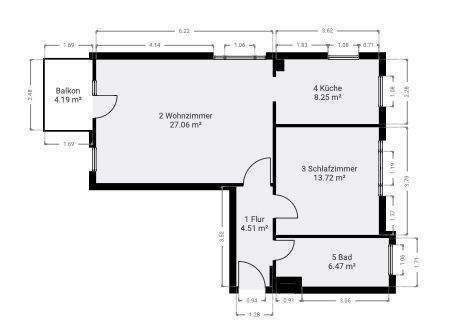
- 2-Raum Wohnung im Erdgeschoss
- neuer Laminatfußboden in Flur, Wohn- und Schlafräumen
- neuer Vinylfußboden in der Küche
- neue Einbauküche inkl. Spüle, Spülmaschine, Herd, Elektrokochfeld, Dunstabzugshaube
- Balkon von Wohnzimmer zugänglich
- neu saniertes Badezimmer mit Badewanne und Fenster
-...
Weitere Informationen
Sonstiges
Besichtigungsanfrage sind auf Anfrage per Mail möglich.
Heizungsart:
Heizkoerper
Anbieter der Immobilie
Annette Schuster Vermietung
Fetscherplatz 5, 01307 Dresden

Frau Annette Schuster
Dein Ansprechpartner
Kontaktiere den Anbieter schriftlich, es ist keine Telefonnummer hinterlegt.
Online-ID: 2mvsy5n
Finde Angebote wie dieses
Hier geht es zu unserem Impressum, den Allgemeinen Geschäftsbedingungen, den Hinweisen zum Datenschutz und nutzungsbasierter Online-Werbung.