
Werde Eigentümer GmbH
Frau Sabine Faber-Garita
+49 ···
Nr. anzeigenPreise & Kosten
Provision für Käufer
provisionsfrei
Lage
EIN KIEZ MIT CHARAKTER - GESUNDBRUNNEN ERLEBEN
Hier in Gesundbrunnen treffen sich die Energie und die Unverfälschtheit des Wedding mit der hipperen Szene des Prenzlauer Bergs. Viele bezeichnen diesen Kiez als den schönsten Teil des Wedding - und mit ihm die Stettiner Straße.
Lange war sie eine unauffällige...
Die Wohnung
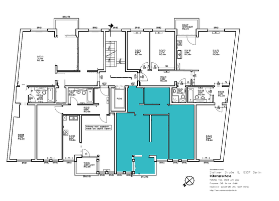
Wohnungslage
1. Geschoss
Bezug
ab sofort
Wohnanlage
Energie & Heizung
Warum sehe ich diese Anzeige? – Du siehst diese Anzeige basierend auf Ihrer Navigation auf unserer Website und den Suchkriterien, die du verwendet hast.
Energieausweistyp
Bedarfsausweis
Gebäudetyp
Wohngebäude
Wesentliche Energieträger
Gas
Gültigkeit
06.11.2018 bis 05.11.2028
Effizienzklasse
E
Endenergiebedarf
158,00 kWh/(m²·a)
Weitere Energiedaten
Energieträger
Gas
Heizungsart
Zentralheizung
Details
Objektbeschreibung
BEST OF 90ER
A translated exposé is available below this text.
Die hier angebotenen Wohnungen liegen in einem wohldurchdachten Wohn- und Geschäftshaus aus den späten 90er-Jahren. Hier wurde an alles gedacht, was das moderne Wohnen für alle Beteiligten angenehm macht:
Fahrstuhl und Tiefgarage zählen dabei ebenso...
Weitere Informationen
Sonstiges
Die Bilder zeigen den aktuellen Zustand der angebotenen Wohnung und des Hauses. Gerne bieten wir Ihnen aber auch einen persönlichen Eindruck bei einer Besichtigung.
Diese Wohnung ist frei und sofort verfügbar.
Dieses Angebot richtet sich sowohl an Selbstnutzerinnen und Selbstnutzer zum zeitnahen Bezug...
Anbieter der Immobilie
Werde Eigentümer GmbH
Töpferwall 2a, 17207 Röbel/Müritz
Online-ID: 2mvvh5h
Referenznummer: WE251128-02-WE03
Finde Angebote wie dieses
Hier geht es zu unserem Impressum, den Allgemeinen Geschäftsbedingungen, den Hinweisen zum Datenschutz und nutzungsbasierter Online-Werbung.