

Wohnung zur Miete360 €2 Zimmer • 60 m² • 3. Geschoss
360 €
2 Zimmer • 60 m² • 3. Geschoss
2-Zimmer-DG-Wohnung mit BALKON, offene Küche, Badewanne - frisch renoviert
Merkmale
- Bezug: sofort
- Dachgeschoss, 3. Geschoss
- Balkon
- Bodenbelag: Fliesen, Laminat
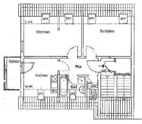
Grundrisse
Grundrisse
1 / 1
Realisiere Dein Projekt
Bausubstanz und Energie
Energieausweis
D
- Baujahr1950
- HeizungsartZentralheizung
- EnergieträgerGas
Mietkosten
Warmmiete
540 €
Kaltmiete
6 €/m²
360 €
Nebenkosten
180 €
Heizkosten
in Warmmiete enthalten
Kaution
720 €
Lage

Neue Sorge 45, Altenburg (04600)
Weitere Informationen
Weitere Services
Lust auf eine Besichtigung?
Eine Frage zur Immobilie?
Über den Anbieter
Online-ID: 2mvvn5f
Referenznummer: 604801

Marko Künne Immobilien
Bewertung: 4 von 5 Sternen
Wie zufrieden bist du mit dieser Seite (nicht mit der Immobilie selbst)?

