
Philipp Fischer Immobilien GmbH
Frau Deborah Kremer
029 ···
Nr. anzeigenPreise & Kosten
Provision für Mieter
keine Provision fällig
Warum sehe ich diese Anzeige? – Du siehst diese Anzeige basierend auf Ihrer Navigation auf unserer Website und den Suchkriterien, die du verwendet hast.
Lage
Die Immobilie befindet sich in stark frequentierter Lage des Stadtzentrums Arnsberg-Hüsten in der Marktstraße 49.
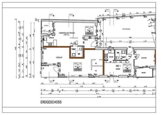
Die Ladenfläche
Kategorie
Laden
Baujahr
2026
Bezug
ca. 01.10.2026
Details
Objektbeschreibung
Diese moderne und kompakt geschnittene Gewerbefläche entsteht in einem Neubau und eignet sich ideal für Gastronomie, Bäckerei, Café oder ähnliche Konzepte. Die clevere Raumaufteilung bietet optimale Voraussetzungen für einen effizienten Betrieb sowie ein einladendes Kundenerlebnis.
Das Gebäude in der Marktstraße...
Ausstattung
- Neubau mit moderner Ausstattung
- Gesamtfläche: ca. 41,36 m²
- Helle, freundliche Verkaufsfläche
- Separater Sitzbereich für Gäste
- Praktischer Vorbereitungsraum
- Getrennte Sanitäreinrichtungen für Kunden und Personal
Weitere Informationen
Sonstiges
Alle Informationen sind vom Eigentümer zur Verfügung gestellt.
Haben wir Ihr Interesse geweckt? Wir freuen uns über Ihre SCHRIFTLICHE Anfrage.
Bitte beachten Sie, dass wir bei Neukunden nur Kontaktanfragen mit vollständigen Angaben von Namen, Anschrift und Telefonnummer bearbeiten.
Wir melden uns...
Anbieter der Immobilie
Online-ID: 2mvwc52
Referenznummer: 594
Finde Angebote wie dieses
Hier geht es zu unserem Impressum, den Allgemeinen Geschäftsbedingungen, den Hinweisen zum Datenschutz und nutzungsbasierter Online-Werbung.