

Kellner Immobilien GmbH
Herr Michael Kellner
053 ···
Nr. anzeigenPreise & Kosten
Kaution
2.395,35
Warum sehe ich diese Anzeige? – Du siehst diese Anzeige basierend auf Ihrer Navigation auf unserer Website und den Suchkriterien, die du verwendet hast.
Lage
Jembke liegt zwischen den Naturparks Südheide und Drömling an der Kleinen Aller. Die Gemeinde gehört der Samtgemeinde Boldecker Land an, die ihren Verwaltungssitz in Weyhausen hat.
Verschiedene Einkaufsmöglichkeiten, eine Apotheke sowie ein Friseursalon sind fußläufig in etwa 10 min zu erreichen.
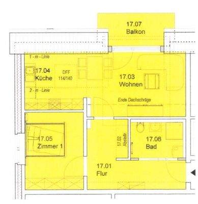
Die Wohnung
Wohnungslage
Dachgeschoss
Bezug
nach Vereinbarung
Wohnanlage
Energie & Heizung
Warum sehe ich diese Anzeige? – Du siehst diese Anzeige basierend auf Ihrer Navigation auf unserer Website und den Suchkriterien, die du verwendet hast.
Energieausweistyp
Bedarfsausweis
Gebäudetyp
Wohngebäude
Baujahr laut Energieausweis
2022
Gültigkeit
bis 22.11.2032
Endenergiebedarf
12,20 kWh/(m²·a)
Weitere Energiedaten
Heizungsart
Luft-/Wasser-Wärmepumpe, Zentralheizung
Details
Objektbeschreibung
Die Wohnanlage in Massivbauweise wurde vor circa zwei Jahren vollständig neu errichtet. Für eine ausgezeichnete Energieeffizienz sorgt die eingebaute Luft-Wärmepumpe zusammen mit einer Photovoltaikanlage. Die großen weißen Kunststofffenster verfügen über eine Dreifachverglasung, die neben einer hohen Tageslichteinwirkung auch...
Ausstattung
Diese einladende Dachgeschosswohnung erreichen Sie bequem über einen Fahrstuhl. Der offen gestaltete Wohn-Essbereich ist mit einer Einbauküche ausgestattet. Zusätzlichen Platz bietet der Balkon, welcher direkt an den Wohnbereich angrenzt. Ferner ist ein Schlafzimmer vorhanden. Das Badezimmer verfügt über eine ebenerdige...
Preisinformation
Nettokaltmiete: 798,45 EUR
Weitere Informationen
Sonstiges
Baujahr: 2022
Energiekennwert: 12,2 kWh/(m²*a)
Befeuerung/Energieträger: Wärmepumpe
Energieausweistyp: Bedarfsausweis
Heizungsart: Wärmepumpe
Energieeffizienzklasse: A+
Stichworte
Anzahl der Schlafzimmer: 1, Anzahl der Badezimmer: 1
Sonstiges/Wohnen: seniorengerechtes Wohnen
Anbieter der Immobilie

Online-ID: 2mvy25n
Referenznummer: 5545
Finde Angebote wie dieses
Hier geht es zu unserem Impressum, den Allgemeinen Geschäftsbedingungen, den Hinweisen zum Datenschutz und nutzungsbasierter Online-Werbung.