
Immobilienquartier iQ OG
Herr Peter Bigus
+43 ···
Nr. anzeigenPreise & Kosten
zzgl. Betriebskosten
Kaution
40.000,00 €
Provision für Mieter
3 Bruttomonatsmieten zzgl. 20% USt.
Warum sehe ich diese Anzeige? – Du siehst diese Anzeige basierend auf Ihrer Navigation auf unserer Website und den Suchkriterien, die du verwendet hast.
Lage
Alserbachstraße / Lichtensteinstraße / Franz Josef Bahnhof / Lichtensteinpark
Die Ladenfläche
Baujahr
1900
Bezug
sofort
Erdgeschoss
Energie & Heizung
Warum sehe ich diese Anzeige? – Du siehst diese Anzeige basierend auf Ihrer Navigation auf unserer Website und den Suchkriterien, die du verwendet hast.
Heizwärmebedarf (HWB)
130,00 kWh/(m²·a)
Weitere Energiedaten
Energieträger
Gas
Heizungsart
Zentralheizung
Details
Objektbeschreibung
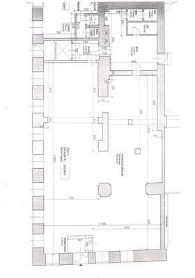
Vermietet wird ein 223,9 m2 großes Geschäftslokal im Erdgeschoß mit einem zirka 80 m2 großen Lager in sehr guter zentraler Lage im 9. Wiener Bezirk in unmittelbarer Nähe zum Lichtensteinpark. Das Objekt kann für sämtliche Branchen ausser Gastronomie benützt werden.
Das Objekt teilt sich wie folgt auf:
-...
Preisinformation
Nettokaltmiete: 4.583,33 EUR
Weitere Informationen
Stichworte
Lagerfläche: 75,00 m², Nutzfläche: 223,90 m², Anzahl der Badezimmer: 1, Anzahl der separaten WCs: 1, Bundesland: Wien
Anbieter der Immobilie
Immobilienquartier iQ OG
Lechnerstraße 18/6, 1030 WIEN
Online-ID: 2mvyl5h
Referenznummer: OBGC20251118121952012d7a26f1f79
Finde Angebote wie dieses
Hier geht es zu unserem Impressum, den Allgemeinen Geschäftsbedingungen, den Hinweisen zum Datenschutz und nutzungsbasierter Online-Werbung.