
ÖRAG Immobilien Vermittlung GmbH
Herr Christian Spassov
004 ···
Nr. anzeigenPreise & Kosten
inkl. Betriebskosten
Kaution
3.250,80
Warum sehe ich diese Anzeige? – Du siehst diese Anzeige basierend auf Ihrer Navigation auf unserer Website und den Suchkriterien, die du verwendet hast.
Lage
Die Lage könnte nicht besser sein.Das EKZ Simmering befindet sich in direkter Nachbarschaft. Supermärkte, Schulen, Ärzte, eine Apotheke, eine Bank und Restaurants sind fußläufig gut erreichbar.
Ein Kindergarten, ein Spar- und ein Action-Markt befinden sich im gleichen Gebäude-Komplex im Erdgeschoß.
Zwei Grünoasen -...
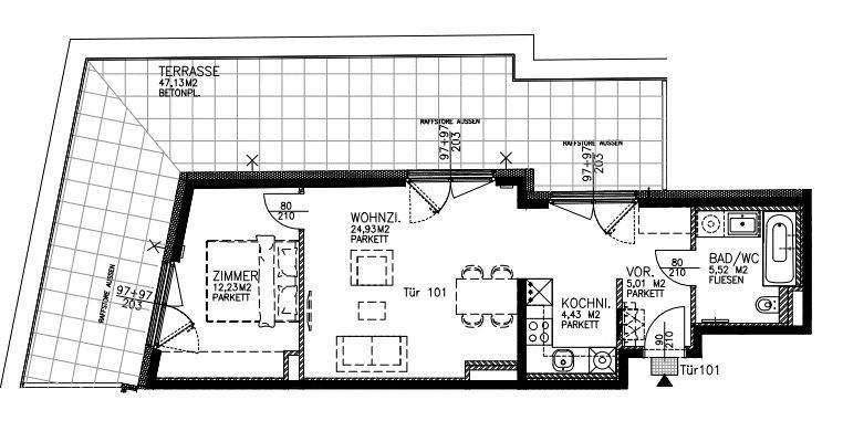
Die Wohnung
Wohnungslage
Dachgeschoss
Bezug
sofort
Wohnanlage
Energie & Heizung
Warum sehe ich diese Anzeige? – Du siehst diese Anzeige basierend auf Ihrer Navigation auf unserer Website und den Suchkriterien, die du verwendet hast.
Heizwärmebedarf (HWB)
23,21 kWh/(m²·a)
Gesamtenergieeffizienz (fGEE)
0,78
Weitere Energiedaten
Energieträger
Fernwärme
Heizungsart
Fußbodenheizung
Details
Objektbeschreibung
Kurzbeschreibung
MY LORY - Die perfekte Lage in Simmering.
Angrenzend an das Zentrum Simmering befindet sich im 2023 in Niedrigenergieweise erbauten Gebäude (mit Lift) diese smarte, 2-Zimmer-Dachgeschoß-Wohnung, mit großer umlaufender Terrasse.
Zudem ist die Wohnung mit Klimaanlage...
Ausstattung
Jede Wohnung verfügt weiters über einen Einlagerungsraum.
Großzügige Kinderwagen- und Fahrradabstellräume sind im Erdgeschoß und im Untergeschoß untergebracht.
Ebenso zwei große helle Mehrzweckräume zur allgemeinen Nutzung.
Garagenplätze können um € 99,00 und € 120,00 (E-Ladegerät) brutto / Monat angemietet...
Preisinformation
Nettokaltmiete: 860,00 EUR
Weitere Informationen
Sonstiges
Wir sind eine Tochtergesellschaft der ÖRAG-Österreichische Realitäten AG, Wien, genannt ÖRAG, und es besteht daher unter Umständen ein sonstiges wirtschaftliches Naheverhältnis im Sinne des Maklergesetzes zur ÖRAG und ihren anderen Tochtergesellschaften in Österreich. Das Naheverhältnis zur ÖRAG ergibt sich zB...
Dokumente
Anbieter der Immobilie
Online-ID: 2mvzn5z
Referenznummer: 10948246
Finde Angebote wie dieses
Hier geht es zu unserem Impressum, den Allgemeinen Geschäftsbedingungen, den Hinweisen zum Datenschutz und nutzungsbasierter Online-Werbung.