
Bien-Zenker GmbH - Markus Gerstung
Herr Markus Gerstung
+49 ···
Nr. anzeigenPreise & Kosten
Provision für Käufer
nein
Lage
Das Grundstück liegt am Rande eines ruhigen Wohngebietes im Ortsteil Niederschmalkalden. Eine Bauerlaubnisvertrag besteht mit der Stadt Schmalkalden.
Das Haus
Kategorie
Einfamilienhaus
Energie & Heizung
Warum sehe ich diese Anzeige? – Du siehst diese Anzeige basierend auf Ihrer Navigation auf unserer Website und den Suchkriterien, die du verwendet hast.
Weitere Energiedaten
Haustyp
KfW 40
Heizungsart
Luft-/Wasser-Wärmepumpe
Details
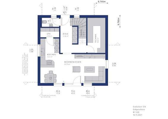
Objektbeschreibung
Einfach chic! Der erste Eindruck des EVOLUTION 124 verspricht schon sehr viel. Das moderne Haus mit Satteldach
mit 25° oder 38° Dachneigung bzw. auch als Walm- oder Flachdach begeistert mit großen Fensterflächen und vielen
schicken Details. Welches Gesicht Ihr EVOLUTION 124 hat, entscheiden Sie! Von modern bis klassisch...
Ausstattung
Es wurde ein Effizienzhaus 40 "Zur Ausstattung fertig" gerechnet, inkl. Bodenplatte, Grundinstallation, Architekt und Wohlfühl-Klima-Heizung+ mit kontrollierter Wohnraumbe- und Entlüftung.
Mit der Ausbauvariante "Zur Ausstattung fertig" können Sie Ihre handwerklichen Fähigkeiten voll ausspielen, wenn Sie die finalen...
Weitere Informationen
Sonstiges
Im angegebenen Preis für dieses projektierte Haus ist das Grundstück, welches Sie direkt von Dritten erwerben, bereits enthalten. Das Angebot ist unverbindlich und freibleibend, exklusive der Baunebenkosten wie z.B. Hausanschlüsse, Außenanlagen, Notar- und Gerichtskosten.
Abbildungen und Grundrisse zeigen...
Anbieter der Immobilie
Bien-Zenker GmbH - Markus Gerstung
Brunnhartshausen 30, 36466 Dermbach
Online-ID: 2mw2t5k
Referenznummer: 12341-13367
Finde Angebote wie dieses
Hier geht es zu unserem Impressum, den Allgemeinen Geschäftsbedingungen, den Hinweisen zum Datenschutz und nutzungsbasierter Online-Werbung.