
Immoteam7 ITS GmbH
Herr Kevin Bachmann
055 ···
Nr. anzeigenPreise & Kosten
Provision für Käufer
Bitte beachte, das Angebot beinhaltet bei Vertragsabschluss die Zahlung einer Provision. Weitere Informationen erhältst Du vom Anbieter.
Die Industriefläche
Kategorie
Lagerhalle
Baujahr
2003
Bezug
nach Absprache
Energie & Heizung
Warum sehe ich diese Anzeige? – Du siehst diese Anzeige basierend auf Ihrer Navigation auf unserer Website und den Suchkriterien, die du verwendet hast.
Weitere Energiedaten
Energieträger
Gas
Heizungsart
Fußbodenheizung
Details
Objektbeschreibung
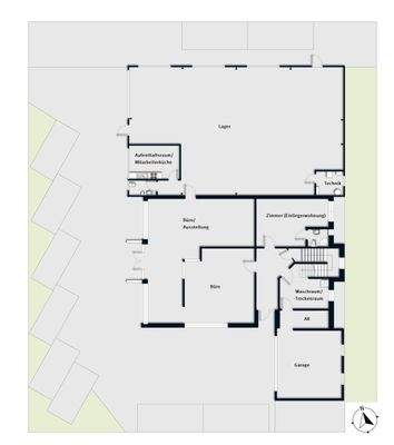
- 112 m² Büro | 233 m² Halle/Werkstatt'/Lager | 215 m² Wohnung | 37 m² Garage
- Hauptgebäude in hochwertiger Massivbauweise und Halle in Metallbau
- ruhige und doch zentrale Lage im Vorderland - perfekt für Arbeiten und Wohnen
- Autobahnvollanbindung in 5 Fahrminuten (Auf- und Abfahrt Bregenz u...
Preisinformation
13 Stellplätze
Weitere Informationen
Stichworte
Wohnfläche: 215,00 m², Nutzfläche: 600,00 m², Gesamtfläche: 600,00 m², Anzahl Balkone: 2, Anzahl Terrassen: 1, Bundesland: Vorarlberg, 2 Etagen, Distanz zum Flughafen: 14.81, Distanz zum Hauptbahnhof: 4.05, Distanz zum Bus: 0.48
Dokumente
Anbieter der Immobilie
Immoteam7 ITS GmbH
Mozartstraße 1, 6850 DORNBIRN
Online-ID: 2mw4d5n
Referenznummer: 2289
Finde Angebote wie dieses
Hier geht es zu unserem Impressum, den Allgemeinen Geschäftsbedingungen, den Hinweisen zum Datenschutz und nutzungsbasierter Online-Werbung.