
Evernest GmbH
Minoo Himstedt
+49 ···
Nr. anzeigenPreise & Kosten
Provision für Käufer
2.38 inkl. MwSt.
Bei Abschluss eines notariellen Kaufvertrages ist eine Käuferprovision vom Käufer in Höhe von 2.38 % inkl. MwSt. aus dem Kaufpreis fällig.
Lage
Das Gewerbeobjekt befindet sich im Ortsteil Büddenstedt der Stadt Helmstedt. Die Lage bietet eine gute Anbindung an den Ortskern sowie an die umliegenden Bundesstraßen und ist auch mit dem ÖPNV bequem erreichbar - eine Bushaltestelle liegt nur wenige Gehminuten entfernt.
Das Objekt genießt durch seine ehemalige...
Das Haus
Baujahr
1988
Energie & Heizung
Warum sehe ich diese Anzeige? – Du siehst diese Anzeige basierend auf Ihrer Navigation auf unserer Website und den Suchkriterien, die du verwendet hast.
Energieausweistyp
Bedarfsausweis
Gebäudetyp
Wohngebäude
Effizienzklasse
E
Endenergiebedarf
388,60 kWh/(m²·a)
Details
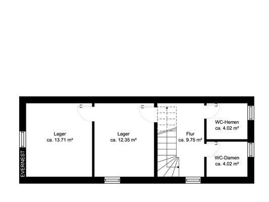
Objektbeschreibung
Das angebotene Gewerbeobjekt befindet sich in ruhiger und zugleich gut erreichbarer Lage von Helmstedt-Büddenstedt. Das Gebäude wurde 1988 in massiver Bauweise errichtet, ist eingeschossig und teilweise unterkellert. Im Jahr 2004 erfolgte eine umfassende Modernisierung.
Insgesamt bietet die Immobilie eine Nutzfläche...
Ausstattung
* umfassende Modernisierung in 2004
* Eckgrundstück
* 3 Außenstellplätze
* Leerstehend
* Klimaanlage
* zwei Mitarbeiter-WCs
Weitere Informationen
Stichworte
Stellplatz vorhanden, Anzahl der Badezimmer: 2, modernisiert
Anbieter der Immobilie
Online-ID: 2mw5m59
Referenznummer: L-97ZNWQ8
Finde Angebote wie dieses
Hier geht es zu unserem Impressum, den Allgemeinen Geschäftsbedingungen, den Hinweisen zum Datenschutz und nutzungsbasierter Online-Werbung.