John Taylor Corporate

John Taylor Lisbon John Taylor Lisbon

Kontaktiere den Anbieter schriftlich, es ist keine Telefonnummer hinterlegt.

5-Schlafzimmer-Wohnung mit privater Terrasse, Pool und Flussblick in Estrela, Lissabon

€ 7.400.000
Kaufpreis
422 m²
Wohnfläche ca.
6
Zimmer

Der Anbieter dieses Objekts hat gegenüber der AVIV Germany GmbH als Betreiber dieses Online-Marktplatzes erklärt, nicht als Unternehmer im Sinne des § 1 KSchG zu handeln. Die im Verbraucherschutzrecht der Union verankerten Verbraucherrechte (insbesondere Informationspflichten und Rücktritts- bzw. Widerrufsrechte) finden auf den Vertrag zwischen dem Anbieter des Objekts und Ihnen (dem Interessenten) keine Anwendung.

Provisionsfrei
Gewerblicher Anbieter

Der Anbieter dieses Objekts hat gegenüber der AVIV Germany GmbH als Betreiber dieses Online-Marktplatzes erklärt, als Unternehmer im Sinne des § 1 KSchG zu handeln.

AdresseStraße nicht freigegeben
1000-001 Estrela 
Auf Karte ansehen

Preise & Kosten

Kaufpreis € 7.400.000

Provision für Käufer

provisionsfrei

Lage

Die Wohnung

Kategorie

Apartment

Wohnungslage

1. Geschoss

  • Terrasse
  • Zustand: renoviert / saniert
  • voll klimatisiert

Wohnanlage

  • Personenaufzug
  • Wellness: Swimming-Pool

Energie & Heizung

Weitere Energiedaten

Heizungsart

Etagenheizung, Fußbodenheizung

Details

Objektbeschreibung

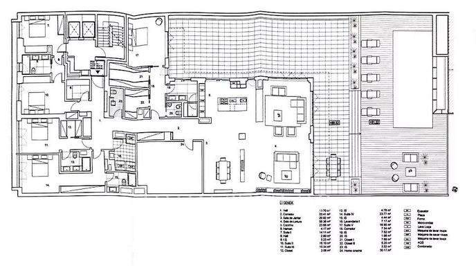
Diese exklusive Wohnung bietet 422 m² Innenfläche und eine 300 m² große private Terrasse mit Swimmingpool, von der aus man einen freien Panoramablick auf den Tejo und die Skyline von Lissabon hat. Die Wohnung erstreckt sich über die gesamte Etage und ist über einen privaten Aufzug erreichbar. Sie vereint Komfort, Platz und...

Mehr anzeigen

Weitere Informationen

Stichworte
Garage vorhanden, Gesamtfläche: 422,00 m², Anzahl der Schlafzimmer: 5, Anzahl Terrassen: 1, Balkon-Terrassen-Fläche: 300,00 m²

Anbieter der Immobilie

Partner

John Taylor Corporate

Place des Moulins, 98000 MONACO

user

John Taylor Lisbon John Taylor Lisbon

Dein Ansprechpartner

Kontaktiere den Anbieter schriftlich, es ist keine Telefonnummer hinterlegt.

Anbieter-Website Anbieter-Profil Anbieter-Impressum

Online-ID: 2mw6n5e

Referenznummer: V0763LI

Finde Angebote wie dieses

imageimageimage

Hier geht es zu unserem Impressum, den Allgemeinen Geschäftsbedingungen, den Hinweisen zum Datenschutz und nutzungsbasierter Online-Werbung.