
ohne-makler.net - Immobilien selbst vermarkten
Privat von Peter Ralf Käpernick
Kontaktiere den Anbieter schriftlich, es ist keine Telefonnummer hinterlegt.
Preise & Kosten
Provision für Käufer
provisionsfrei
Lage
Das Objekt steht im Herzen von Stuhr-Varrel, einer der gefragtesten Gegenden vor den Toren Bremens - gutsituiert, ruhig und naturnah mit einer hervorragenden Anbindung an die Innenstadt sowie an Einkaufsmöglichkeiten, Restaurants und Freizeitangeboten.
Alle Schultypen, Kindergarten und Kindergrippe, Bank, Apotheken und...
Das Haus
Kategorie
Einfamilienhaus
Baujahr
2017
Bezug
nach Absprache
Energie & Heizung
Warum sehe ich diese Anzeige? – Du siehst diese Anzeige basierend auf Ihrer Navigation auf unserer Website und den Suchkriterien, die du verwendet hast.
Energieausweistyp
Bedarfsausweis
Gebäudetyp
Wohngebäude
Effizienzklasse
A
Endenergiebedarf
49,00 kWh/(m²·a)
Weitere Energiedaten
Energieträger
Gas
Heizungsart
Fußbodenheizung, offener Kamin
Details
Objektbeschreibung
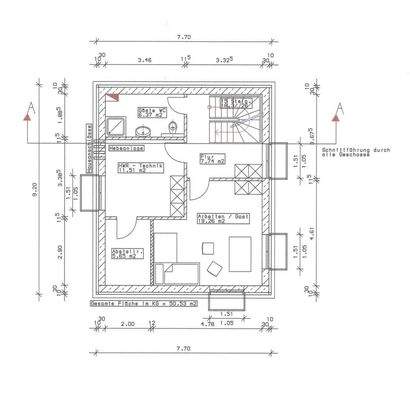
Bei dieser Immobilie handelt es sich um ein hoch modernes EFH im Stil einer Stadtvilla, Baujahr 2017. Auf 150qm Nutzfläche bietet es über 2 Etagen und ein vollwertiges Souterrain genügend Platz zum Wohnen.
Im Erdgeschoss gibt es eine große, offene Küche, einen Ess- und einen Wohnbereich sowie Zugang zum Garten und zur...
Ausstattung
Terrasse, Garten, Keller, Vollbad, Duschbad, Einbauküche, Kamin, Laminat, Fliesen
Bemerkungen:
- Erdgeschoss mit Essbereich, Wohnzimmer und großer, offener Küche sowie Zugang zur
Süd-West-Terrasse
- Kaminanschluss im EG vorhanden
- modernes Bad im OG mit freistehender Wanne und großer bodentiefer...
Preisinformation
2 Stellplätze
Weitere Informationen
Sonstiges
Heizungsart: Fußbodenheizung
Energieträger: Gas
Makleranfragen nicht erwünscht. Nach § 7 UWG sind unaufgeforderte Kontaktaufnahmen durch Makler ohne ausdrückliche Einwilligung des Empfängers verboten!
ohne-makler (OM) ist weder Anbieter noch Vermittler der Immobilie. OM betreibt eine...
Anbieter der Immobilie
ohne-makler.net - Immobilien selbst vermarkten
Humboldtstr. 25 A, 21509 Glinde
Privat von Peter Ralf Käpernick
Dein Ansprechpartner
Kontaktiere den Anbieter schriftlich, es ist keine Telefonnummer hinterlegt.
Online-ID: 2mw7k5m
Referenznummer: 409594
Finde Angebote wie dieses
Hier geht es zu unserem Impressum, den Allgemeinen Geschäftsbedingungen, den Hinweisen zum Datenschutz und nutzungsbasierter Online-Werbung.