
BEST PLACE Immobilien GmbH & Co. KG
Ihr Best Place Vertriebsteam
004 ···
Nr. anzeigenPreise & Kosten
Provision für Käufer
3,57%
Lage
Die Adresse im Wilhelmine-Gemberg-Weg steht für eine der begehrtesten Wohnlagen Berlins: ruhig, urban und umgeben von kreativer Energie. Hier trifft das gewachsene Berlin-Mitte auf junge Szene, anspruchsvolle Gastronomie und kulturelle Vielfalt. Der benachbarte Holzmarkt, kleine Galerien, Designerläden und internationale...
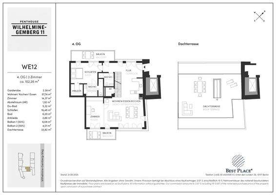
Die Wohnung
Kategorie
Penthouse
Wohnungslage
4. Geschoss
Bezug
sofort
Wohnanlage
Energie & Heizung
Warum sehe ich diese Anzeige? – Du siehst diese Anzeige basierend auf Ihrer Navigation auf unserer Website und den Suchkriterien, die du verwendet hast.
Energieausweistyp
Bedarfsausweis
Gebäudetyp
Wohngebäude
Baujahr laut Energieausweis
2013
Wesentliche Energieträger
KWK_FOSSIL
Gültigkeit
bis 18.09.2026
Effizienzklasse
B
Endenergiebedarf
75,00 kWh/(m²·a)
Weitere Energiedaten
Energieträger
Elektro
Heizungsart
offener Kamin
Details
Objektbeschreibung
Dieses exklusive Penthouse vereint architektonische Finesse mit urbaner Lebensqualität - ein stilvoller Rückzugsort für Menschen mit höchsten Ansprüchen. Auf großzügigen 3 Zimmern erleben Sie ein Ambiente, das Ästhetik, Funktion und Freiheit perfekt verbindet. Der lichtdurchflutete Wohn- und Essbereich mit offener, griffloser...
Ausstattung
.offene, grifflose Küche mit Insel in zeitlosem Weiß
.Industrie-Details wie freigelegte Ziegelsteinwände und Innentrennwände in Stahl-Glas
."Parat" Landhausdielen in Eiche & Betonböden
.Bäder mit weißen Fliesen im Halbverband und Böden mit grossformatigen, dunkelgrauen Fliesen
.Dachterrasse mit Blick auf die...
Weitere Informationen
Stichworte
Gesamtfläche: 152,00 m², vermietbare Fläche: 152,00 m², Anzahl der Badezimmer: 2, 5 Etagen, Wohnungsnr.: WE 01
Anbieter der Immobilie
Online-ID: 2mw8a5k
Referenznummer: WILGEM-WE01
Finde Angebote wie dieses
Hier geht es zu unserem Impressum, den Allgemeinen Geschäftsbedingungen, den Hinweisen zum Datenschutz und nutzungsbasierter Online-Werbung.