

Living Fertighaus GmbH - Handelsvertretung Torsten Rohde
Herr Torsten Rohde
+49 ···
Nr. anzeigenPreise & Kosten
Provision für Käufer
keine Angaben
Lage
Wettin-Löbejün ist eine Stadt im Saalekreis im deutschen Land Sachsen-Anhalt. Wettin-Löbejün ist die nördlichste Gemeinde und Stadt im Saalekreis, sie liegt ca. 60 Kilometer südlich der Landeshauptstadt Magdeburg und 15 Kilometer nördlich der Großstadt Halle. Nach Dessau sind es in Richtung Nordosten rund 35 Kilometer. Das...
Das Haus
Kategorie
Bungalow
Baujahr
2024
Bezug
2026
Energie & Heizung
Warum sehe ich diese Anzeige? – Du siehst diese Anzeige basierend auf Ihrer Navigation auf unserer Website und den Suchkriterien, die du verwendet hast.
Energieausweistyp
Bedarfsausweis
Gebäudetyp
Wohngebäude
Baujahr laut Energieausweis
2026
Wesentliche Energieträger
Strom, Solar
Effizienzklasse
A+
Endenergiebedarf
18,00 kWh/(m²·a)
Weitere Energiedaten
Haustyp
KfW 40
Energieträger
Solar
Heizungsart
Fußbodenheizung, Luft-/Wasser-Wärmepumpe
Details
Objektbeschreibung
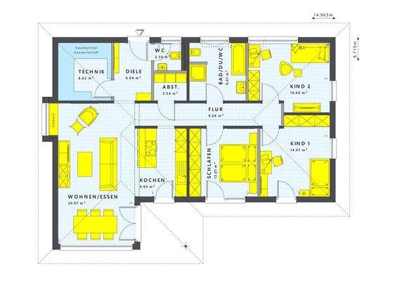
Der Bungalow Solution 110 (Beispielbild) besticht durch seine sehr durchdachte Planung und sein attraktives Erscheinungsbild. Ziehen Sie ein, in ihr neues Einfamilienhaus. Sichern Sie sich den besten Standard und einen tollen Preis. Als Ausbauhaus Plus geplant, können Sie sich bereits jetzt auf ihr neues und schickes Haus...
Ausstattung
Bestimme, wie groß es sein soll, was für Architektur- und Fassadenbauteile dran sollen und welche der vielen Grundrissvarianten deiner ist. Auch deine Freundin wird euer neues Zuhause lieben - und wenn ihr so weit seid, könnt ihr euren Kindern das wunderbare Zuhause bieten, das sie verdient haben. Auch das wichtige Homeoffice...
Weitere Informationen
Sonstiges
Natürlich sind unsere Häuser mit den besten Energiekennwerten der heutigen Zeit ausgestattet. Gerne berate ich Sie auch hier über die vielen Möglichkeiten und auch, wie wir gemeinsam dadurch unseren Planeten schützen können. Die Erfüllung der Anforderungen für ein Zertifikat der Deutschen Gesellschaft für...
Anbieter der Immobilie
Living Fertighaus GmbH - Handelsvertretung Torsten Rohde
Breiter Weg 213b, 39104 Magdeburg

Online-ID: 2mway5r
Referenznummer: 30332-24156
Finde Angebote wie dieses
Hier geht es zu unserem Impressum, den Allgemeinen Geschäftsbedingungen, den Hinweisen zum Datenschutz und nutzungsbasierter Online-Werbung.