
Antaris Immobilien GmbH
Herrn Felix Reinhardt
+49 ···
Nr. anzeigenPreise & Kosten
Provision für Käufer
3,57 % der Kaufpreissumme inkl. MwSt. vom Käufer
Lage
Die angebotene Gewerbeimmobilie befindet sich im Gewerbegebiet von Oldisleben, einem Ortsteil der Gemeinde "An der Schmücke" im Norden von Thüringen
Hervorzuheben ist die gut erschlossene Lage mit verkehrsgünstigen Anschluss und guter Erreichbarkeit.
Die nächste Autobahnanschlussstelle zur A71 befindet sich...
Das Renditeobjekt
Baujahr
1996
Energie & Heizung
Warum sehe ich diese Anzeige? – Du siehst diese Anzeige basierend auf Ihrer Navigation auf unserer Website und den Suchkriterien, die du verwendet hast.
Wärme
Strom
Energieausweistyp
Verbrauchsausweis
Gebäudetyp
Nicht-Wohngebäude
Baujahr laut Energieausweis
1996
Wesentliche Energieträger
Gas
Gültigkeit
seit 11.02.2025
Endenergieverbrauch (Wärme)
83,00 kWh/(m²·a) - Warmwasser enthalten
Endenergieverbrauch (Strom)
14,50 kWh/(m²·a) - Warmwasser enthalten
Details
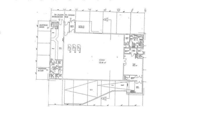
Objektbeschreibung
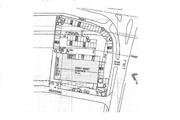
Die im Jahre 1996 errichtete Immobilie befindet sich auf einem 4.466m² großen Grundstück im Gewerbegebiet des Ortes Oldisleben.
Die solide Gewerbeimmobilie war bis 2016 Standort eines Lebensmitteleinzelhändlers, wurde nach dessen Mietvertragsende revitalisiert und an einen internationalen Onlineversandhändler vermietet...
Weitere Informationen
Sonstiges
- zentrale Lage
- langfristig Vermietet
- indexierter Mietvertrag
- großer Parkplatz
Anbieter der Immobilie
Online-ID: 2mwb85r
Referenznummer: VK28/E1
Finde Angebote wie dieses
Hier geht es zu unserem Impressum, den Allgemeinen Geschäftsbedingungen, den Hinweisen zum Datenschutz und nutzungsbasierter Online-Werbung.