
Grethe Schellmann Immobilienvermarktungs GmbH
Frau Vassilia Tsoufianis
004 ···
Nr. anzeigenPreise & Kosten
Provision für Käufer
3,57% inkl. MwSt.
Lage
Das Objekt liegt im beliebten Weinort Nordheim am Main, direkt an der Mainschleife und umgeben von Weinbergen.
Die Region ist touristisch sehr gefragt, mit zahlreichen Weingütern, Restaurants, Ferienunterkünften und Freizeitangeboten. Fähre, Skatepark, Wanderwege und Weinradrouten befinden sich in unmittelbarer Nähe...
Gastronomie/Hotel
Kategorie
Hotel
Baujahr
1990
Bezug
nach Vereinbarung
Energie & Heizung
Warum sehe ich diese Anzeige? – Du siehst diese Anzeige basierend auf Ihrer Navigation auf unserer Website und den Suchkriterien, die du verwendet hast.
Wärme
Strom
Energieausweistyp
Verbrauchsausweis
Gebäudetyp
Nicht-Wohngebäude
Baujahr laut Energieausweis
1990
Wesentliche Energieträger
GAS
Gültigkeit
bis 13.11.2035
Endenergieverbrauch (Wärme)
100,30 kWh/(m²·a)
Endenergieverbrauch (Strom)
46,90 kWh/(m²·a)
Details
Objektbeschreibung
Dieser vielseitige Gastronomie- und Beherbergungskomplex in Nordheim am Main bietet zahlreiche Optionen für Betreiber, Investoren oder Projektentwickler.
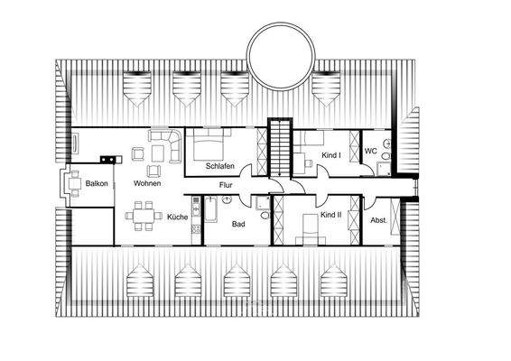
Auf zwei Etagen befinden sich 23 Hotelzimmer, überwiegend Doppelzimmer mit eigenem Bad, teilweise auch Familienzimmer. Darüber liegt eine Eigentumswohnung mit ca...
Ausstattung
- Zwei Etagen (1. OG und DG) mit insgesamt 23 Hotelzimmern (überwiegend Doppelzimmer, alle mit eigenem Bad)
- Eigentumswohnung im 2. DG mit ca. 100 m² Wohnfläche und Balkon mit tollem Ausblick
- Zwei große Gasträume mit variabler Raumaufteilung (insgesamt ca. 100 Sitzplätze) gesamt ca. 140 m²
- Direkter Zugang zum...
Weitere Informationen
Sonstiges
Gerne stehen wir Ihnen für exklusive Besichtigungstermine zur Verfügung. Termine hierfür können Sie jederzeit schriftlich per E-Mail oder per Telefon mit uns vereinbaren.
Die vorliegenden Angaben sind ohne Gewähr und basieren auf Informationen, die vom Auftraggeber zur Verfügung gestellt worden sind. Es...
Anbieter der Immobilie
Online-ID: 2mwcx5d
Referenznummer: 1474
Finde Angebote wie dieses
Hier geht es zu unserem Impressum, den Allgemeinen Geschäftsbedingungen, den Hinweisen zum Datenschutz und nutzungsbasierter Online-Werbung.