

VON POLL IMMOBILIEN Fürth - Maringer Immobilien GmbH
Team VON POLL IMMOBILIEN Fürth
+49 ···
Nr. anzeigenPreise & Kosten
Provision für Käufer
Käuferprovision beträgt 3,57 % (inkl. MwSt.) des beurkundeten Kaufpreises
Abschreibung/Anlage
Denkmalschutz-Afa
Lage
Ottensoos ist ein charmantes, familienfreundliches Dorf im Nürnberger Land, das eine ideale Mischung aus ländlicher Ruhe und hervorragender Anbindung bietet. Eingebettet in eine idyllische Naturkulisse mit Wäldern, Wiesen und weitläufigen Spazierwegen, vermittelt der Ort ein Gefühl von Geborgenheit und hoher...
Das Haus
Kategorie
Einfamilienhaus
Baujahr
1826
Energie & Heizung
Warum sehe ich diese Anzeige? – Du siehst diese Anzeige basierend auf Ihrer Navigation auf unserer Website und den Suchkriterien, die du verwendet hast.
Energieausweis: für diesen Gebäudetyp nicht notwendig
Details
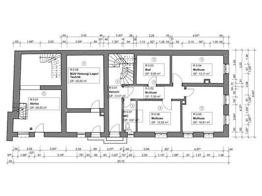
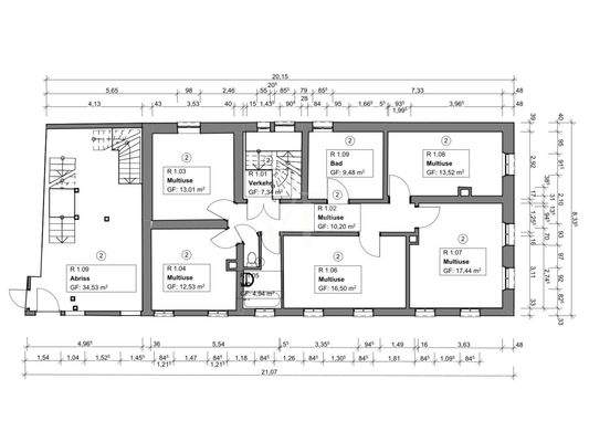
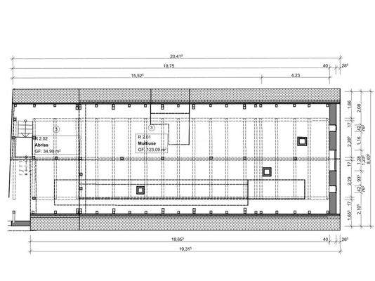
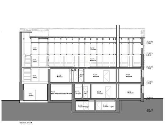
Objektbeschreibung
Auf dem historischen Gelände des ehemaligen Kronenbräu-Areals befindet sich dieses besondere Wohnhaus aus dem Jahr 1826, das ursprünglich als Verwaltungsgebäude der Brauerei genutzt wurde. Das Haus steht unter Denkmalschutz, was den historischen Wert unterstreicht und besondere Gestaltungsmöglichkeiten sowie steuerliche...
Preisinformation
6 Stellplätze
Weitere Informationen
Sonstiges
GELDWÄSCHE: Als Immobilienmaklerunternehmen ist die von Poll Immobilien GmbH nach § 2 Abs. 1 Nr. 14 und § 11 Abs. 1, 2 Geldwäschegesetz (GwG) dazu verpflichtet, bei der Begründung einer Geschäftsbeziehung die Identität des Vertragspartners festzustellen und zu überprüfen, bzw. sobald ein ernsthaftes Interesse an...
Anbieter der Immobilie

Online-ID: 2mwe85r
Referenznummer: 25 369 067-1
Finde Angebote wie dieses
Hier geht es zu unserem Impressum, den Allgemeinen Geschäftsbedingungen, den Hinweisen zum Datenschutz und nutzungsbasierter Online-Werbung.