
Evernest GmbH
Melina Ifrah
+49 ···
Nr. anzeigenPreise & Kosten
Provision für Käufer
3.57 inkl. MwSt.
Bei Abschluss eines notariellen Kaufvertrages ist eine Käuferprovision vom Käufer in Höhe von 3.57 % inkl. MwSt. aus dem Kaufpreis fällig.
Lage
Potsdam, the capital of Brandenburg with a population of around 190,000, is considered one of Germany's most culturally and architecturally significant cities. As a UNESCO World Heritage Site, it captivates with its harmonious blend of baroque cityscapes, magnificent palaces, expansive parks, and renowned cultural...
Das Haus
Kategorie
Villa
Baujahr
1910
Details
Objektbeschreibung
A Rare Gem - Where History, Elegance, and Impressive Substance Converge
Set within the historically rich villa enclave of Babelsberg-once home to diplomats, bankers, and intellectuals-this magnificent country house villa from 1910 once served as the summer residence of banker Frank Urbig. Among its distinguished...
Ausstattung
* A Rare Gem - Combining History, Elegance, and Impressive Substance
* Historic country-style villa offering a spacious family retreat
* Year of construction: 1910 (former summer residence of banker Frank Urbig)
* Distinctive mansard roof - an architectural hallmark
* Approx. 1,314?sqms plot
* Approx. 323?sqms...
Weitere Informationen
Energiepass
Energieausweis wird bei Besichtigung vorgelegt.
Stichworte
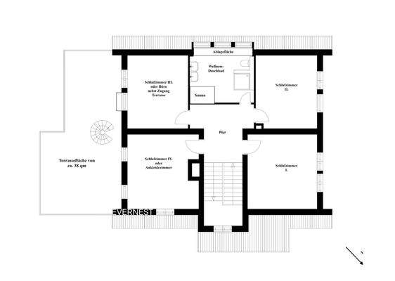
Garage vorhanden, Nutzfläche: 389,00 m², Anzahl der Schlafzimmer: 6, Anzahl der Badezimmer: 2, Anzahl der separaten WCs: 1, Anzahl Balkone: 1, Anzahl Terrassen: 1, Gartenfläche: 1.314,00 m², 3 Etagen, modernisiert
Anbieter der Immobilie
Online-ID: 2mwen5v
Referenznummer: L-766HEZ4
Finde Angebote wie dieses
Hier geht es zu unserem Impressum, den Allgemeinen Geschäftsbedingungen, den Hinweisen zum Datenschutz und nutzungsbasierter Online-Werbung.