
Mückenheim Immobilien GmbH
Herr Micky Mückenheim
Kontaktiere den Anbieter schriftlich, es ist keine Telefonnummer hinterlegt.
Preise & Kosten
Provision für Käufer
5,95 % inkl. MwSt.
Die Käuferprovision in Höhe von 5,95% inkl. MwSt. ist verdient und fällig mit Beurkundung des notariellen Kaufvertrages.
Abschreibung/Anlage
Denkmalschutz-Afa
Lage
Das angebotene Objekt befindet sich in einer der Toplagen der Stadt Halle (Saale), gelegen an der Grenze zwischen der Altstadt und dem Paulusviertel. Der Stadtteil zeichnet sich durch seine gute Infrastruktur aus, mit Einkaufsmöglichkeiten, Restaurants und Schulen in unmittelbarer Nähe. Zudem bieten Parks und Grünflächen Raum...
Das Haus
Kategorie
Mehrfamilienhaus
Baujahr
1900
Bezug
sofort
Derzeitige Nutzung
vermietet
Energie & Heizung
Warum sehe ich diese Anzeige? – Du siehst diese Anzeige basierend auf Ihrer Navigation auf unserer Website und den Suchkriterien, die du verwendet hast.
Energieausweis: für diesen Gebäudetyp nicht notwendig
Weitere Energiedaten
Energieträger
Gas
Heizungsart
Etagenheizung
Details
Objektbeschreibung
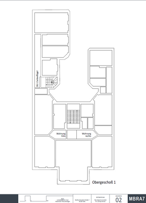
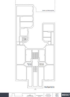
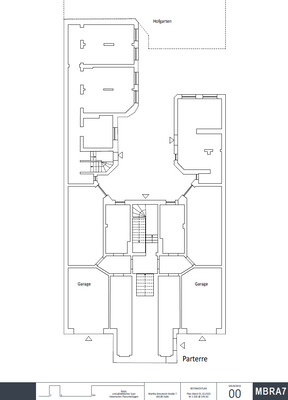
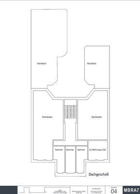
Das angebotene Mehrfamilienhaus ist teilsaniert/-renoviert und erstreckt sich über ein Haupthaus mit zwei angrenzen Seitenflügeln. Das Objekt verfügt aktuell über 7 Wohneinheiten. Weiteres Ausbaupotenzial im Dachgeschoss sowie im Souterrain ist denkbar. Es befinden sich jeweils zwei bis drei Wohneinheiten auf den jeweiligen...
Ausstattung
Die renovierten Wohnungen wurden für 8,50€ Kaltmiete je Quadratmeter vermietet. Die Bestandsmieter zahlen aktuell eine Kaltmiete in Höhe von 4,50 € bis 6,00 € je Quadratmeter.
Preisinformation
2 Garagenstellplätze
Ist-Mieteinnahmen pro Jahr: 70.700,00 EUR
Weitere Informationen
Sonstiges
Alle Angaben sind ohne Gewähr und basieren ausschließlich auf Informationen, die uns von unserem Auftraggeber übermittelt wurden. Wir übernehmen keine Gewähr für die Vollständigkeit, Richtigkeit und Aktualität dieser Angaben. Zwischenverkauf bleibt vorbehalten. Sollte Ihnen das von uns nachgewiesene Objekt...
Anbieter der Immobilie
Mückenheim Immobilien GmbH
Am Kirchtor 27, 06108 Halle (Saale)
Herr Micky Mückenheim
Dein Ansprechpartner
Kontaktiere den Anbieter schriftlich, es ist keine Telefonnummer hinterlegt.
Online-ID: 2mwer5b
Referenznummer: 128624503#rXRm3Z
Finde Angebote wie dieses
Hier geht es zu unserem Impressum, den Allgemeinen Geschäftsbedingungen, den Hinweisen zum Datenschutz und nutzungsbasierter Online-Werbung.