

GTH GmbH
Herr Jörg Bartel
+49 ···
Nr. anzeigenPreise & Kosten
Provision für Käufer
Käuferprovision beträgt 5,95 % (inkl. MwSt.) des beurkundeten Kaufpreises.
Lage
Das Einfamilienhaus befindet sich in gepflegtem und ruhigen Wohnumfeld in Ober-Neundorf.
Das Dorf war bis 1950 selbständige Gemeinde und bis 1998 Ortsteil von Ludwigsdorf und ist durch Eingemeindung seit dem 1. Januar 1999 der nördlichste Ortsteil von Görlitz.
Ober-Neundorf liegt zwischen Zodel im Norden und...
Das Haus
Kategorie
Einfamilienhaus
Baujahr
1908
Energie & Heizung
Warum sehe ich diese Anzeige? – Du siehst diese Anzeige basierend auf Ihrer Navigation auf unserer Website und den Suchkriterien, die du verwendet hast.
Energieausweistyp
Bedarfsausweis
Gebäudetyp
Wohngebäude
Baujahr laut Energieausweis
1995
Wesentliche Energieträger
Öl
Gültigkeit
24.10.2025 bis 23.10.2035
Effizienzklasse
G
Endenergiebedarf
210,30 kWh/(m²·a)
Weitere Energiedaten
Energieträger
Öl
Heizungsart
Zentralheizung
Details
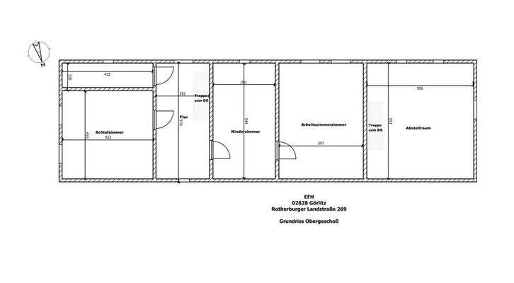
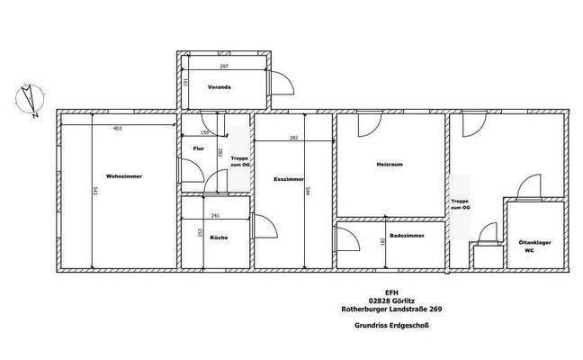
Objektbeschreibung
Dieses attraktive ca. 1908 errichtete Einfamilienhaus befindet sich auf einem knapp 1343 m² großen Grundstück.
Das angebotene Haus befindet sich in Ober-Neundorf. Dies ist ein Ortsteil von Görlitz in der Oberlausitz.
Die derzeitige Wohnfläche von ca. 80 m² kann durch Einbau einer Tür im OG (bisheriger...
Ausstattung
Dieses Haus bietet eine solide Grundlage und wartet auf kreative Hände, um wieder in neuem Glanz zu erstrahlen. Es ist renovierungsbedürftig, eröffnet jedoch vielfältige Möglichkeiten zur individuellen Gestaltung.
Der Großteil der Fenster ist schon 1998 durch doppelverglaste Kunststofffenster ersetzt worden.
Die...
Weitere Informationen
Sonstiges
Alle Angaben beruhen auf Vorabinformationen des Eigentümers und sind ohne Gewähr. Irrtum, Zwischenverkauf und Preisänderung bleiben ausdrücklich vorbehalten.
Der genaue Preis und die Nebenkosten können variieren. Nutzungsarten sowie anliegende Medien erfragen Sie bitte im persönlichen Gespräch oder bekommen...
Anbieter der Immobilie
GTH GmbH
Neißstraße 9, 02826 Görlitz

Online-ID: 2mwew5s
Referenznummer: 59 (1/59)
Finde Angebote wie dieses
Hier geht es zu unserem Impressum, den Allgemeinen Geschäftsbedingungen, den Hinweisen zum Datenschutz und nutzungsbasierter Online-Werbung.