

KENSINGTON Finest Properties International - Dithmarschen
Herr Nico Springer
+49 ···
Nr. anzeigenPreise & Kosten
Provision für Käufer
provisionsfrei
Lage
Das Haus befindet sich im grünen Ortsteil Böhl, eingebettet in eine gewachsene Nachbarschaft mit überwiegend Einfamilienhäusern, aufgelockerter Bebauung und liebevoll gepflegten Gärten.
Die Umgebung ist dauerhaft bewohnt und vermittelt ein angenehmes Gefühl von Privatsphäre, Geborgenheit und Sicherheit. Das...
Das Haus
Kategorie
Einfamilienhaus
Baujahr
2011
Energie & Heizung
Warum sehe ich diese Anzeige? – Du siehst diese Anzeige basierend auf Ihrer Navigation auf unserer Website und den Suchkriterien, die du verwendet hast.
Energieausweistyp
Bedarfsausweis
Gebäudetyp
Wohngebäude
Wesentliche Energieträger
Luftwärmepumpe
Gültigkeit
11.02.2025 bis 10.02.2035
Effizienzklasse
B
Endenergiebedarf
62,40 kWh/(m²·a)
Weitere Energiedaten
Heizungsart
Fußbodenheizung, Luft-/Wasser-Wärmepumpe, offener Kamin
Details
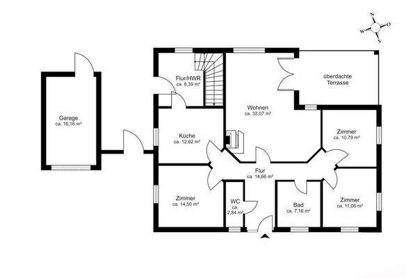
Objektbeschreibung
Dieses exklusive Einfamilienhaus mit 2 Wohneinheiten liegt im begehrten Ortsteil Böhl - nur wenige Gehminuten vom Seedeich, den Salzwiesen und dem feinsandigen Strand entfernt - und überzeugt mit sonniger Südwest-Ausrichtung. Das Haus vereint Komfort und Flexibilität auf einzigartige Weise - ob als großzügiges Zuhause für die...
Ausstattung
Diese wunderschöne Immobilie offenbart sich als wahres Highlight in Sachen Ausstattung!
. Wärmepumpe
. Fußbodenheizung
. Kachelofen
. Alarmanlage
. Sicherheitskameras
. LED Außenbeleuchtung mit Bewegungsmelder
. Elektrische Rollläden, zur Frontseite Klappläden
. Elektrische Toranlage
...
Preisinformation
3 Garagenstellplätze
Weitere Informationen
Sonstiges
Für nähere Informationen zu diesem Objekt steht Ihnen Herr Nico Springer unter der Mobilfunknummer 0172 288 76 10 zur Verfügung. Um eine Zeitverzögerung bei der Versendung des Exposés zu vermeiden, bitten wir Sie bei Ihrer Anfrage, Ihre vollständige Adresse, Telefonnummer sowie Ihre Email Adresse zu hinterlassen...
Anbieter der Immobilie
KENSINGTON Finest Properties International - Dithmarschen
Coming Soon, 25746 Heide

Online-ID: 2mwgr5w
Referenznummer: KDI_182
Finde Angebote wie dieses
Hier geht es zu unserem Impressum, den Allgemeinen Geschäftsbedingungen, den Hinweisen zum Datenschutz und nutzungsbasierter Online-Werbung.