

miwa Service GmbH
Herr Michel Wagner
029 ···
Nr. anzeigenPreise & Kosten
Provision für Käufer
3,57% ink. gesetzlicher MwSt. inkl. MwSt.
Lage
Die Immobilie liegt in der Glatzer Straße 4 in Lippstadt und damit in einer ruhigen, etablierten Wohnlage, die sich seit Jahren durch eine stabile Nachfrage nach Wohnraum auszeichnet. Das direkte Umfeld ist überwiegend von Wohnbebauung geprägt und bietet ein angenehmes, nachgefragtes Wohnumfeld.
Lippstadt verbindet die...
Die Wohnung
Wohnungslage
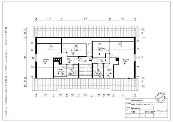
1. Geschoss (Dachgeschoss)
Bezug
sofort
Derzeitige Nutzung
vermietet
Wohnanlage
Energie & Heizung
Warum sehe ich diese Anzeige? – Du siehst diese Anzeige basierend auf Ihrer Navigation auf unserer Website und den Suchkriterien, die du verwendet hast.
Energieausweistyp
Bedarfsausweis
Gebäudetyp
Wohngebäude
Baujahr laut Energieausweis
1964
Wesentliche Energieträger
GAS
Gültigkeit
bis 09.04.2034
Effizienzklasse
G
Endenergiebedarf
229,80 kWh/(m²·a)
Weitere Energiedaten
Energieträger
Gas
Heizungsart
Zentralheizung
Details
Objektbeschreibung
Diese kompakte 2-Zimmer-Eigentumswohnung im Dachgeschoss eignet sich ideal für Anleger, die gezielt in kleinere, gut vermietbare Einheiten investieren möchten.
Das Gebäude wurde kürzlich in einzelne Eigentumswohnungen aufgeteilt, sodass die Wohnungseigentümergemeinschaft (WEG) gerade erst beginnt. Für Kapitalanleger...
Ausstattung
Das Gebäude präsentiert sich insgesamt in einem sehr gepflegten Zustand. Wesentliche Investitionen in die Bausubstanz wurden in den vergangenen Jahren bereits vorgenommen:
Dach und Fenster erneuert, Gas-Zentralheizung modernisiert (2018), Elektrik teiweise erneuert (insb. Haupt und Unterverteilungen), Warmwasseraufbreitung...
Preisinformation
1 Stellplatz, Kaufpreis: 8.000,00 EUR
1 Garagenstellplatz, Kaufpreis: 15.000,00 EUR
Soll-Mieteinnahmen pro Jahr: 5.400,00 EUR
Ist-Mieteinnahmen pro Jahr: 4.800,00 EUR
Weitere Informationen
Sonstiges
Als besonderen Service bieten wir unseren Kunden eine vollständig aufbereitete Investment- und Renditeberechnung auf Basis einer professionellen Analyseplattform - inklusive transparenter Kennzahlen zu Rendite, Cashflow, Eigenkapitalentwicklung und Exit-Szenarien, damit Kapitalanleger ihre...
Anbieter der Immobilie

Online-ID: 2mwjk5t
Referenznummer: 25248MW_DGR
Finde Angebote wie dieses
Hier geht es zu unserem Impressum, den Allgemeinen Geschäftsbedingungen, den Hinweisen zum Datenschutz und nutzungsbasierter Online-Werbung.