

DAHLER Chiemsee & Rosenheim - PRIME HOUSE GmbH
Herr Stephan Balte
+49 ···
Nr. anzeigenPreise & Kosten
Provision für Käufer
3,57 % inkl. der gesetzl. MwSt., bezogen auf den Kaufpreis inkl. MwSt.
Lage
_Region oberbayrisches Alpenvorland im Landkreis Traunstein
_Europastadt Traunreut
_Klassische Wohngegend mit kurzen Wegen
_Alle Geschäfte in der Nachbarschaft
_Großer Arbeitgeber für Mess- und Steuerungstechnik in wenigen Minuten erreichbar
_ca. 10 Gehminuten ins Zentrum von Bad Aibling
_Sehr gute...
Die Wohnung
Kategorie
Maisonette
Wohnungslage
4. Geschoss
Bezug
sofort
Wohnanlage
Energie & Heizung
Warum sehe ich diese Anzeige? – Du siehst diese Anzeige basierend auf Ihrer Navigation auf unserer Website und den Suchkriterien, die du verwendet hast.
Energieausweistyp
Verbrauchsausweis
Gebäudetyp
Wohngebäude
Baujahr laut Energieausweis
1962
Wesentliche Energieträger
GAS
Gültigkeit
bis 03.12.2028
Effizienzklasse
D
Endenergieverbrauch
107,10 kWh/(m²·a)
Weitere Energiedaten
Energieträger
Fernwärme
Details
Objektbeschreibung
_Saniertes Mehrfamilienhaus in zentrumsnaher Lage
_10 Wohneinheiten im Haus
_Gegensprechanlage
_Abschließbares Kellerabteil
_Gebäudehülle mit niedrigem Energiebedarf
_Fernwärmeanschluß seit 2019
_Bruttomietrendite (Soll) >5% möglich
Ausstattung
_2 sanierte Wohneinheiten (4-Zimmer-Maisonette & 2-Zimmer-Dachgeschoßwohnung)
_Komplett saniert in 2019
_Dachgeschoß gedämmt und liebevoll ausgebaut
_Waschmaschinenanschluß in jeder Wohnung
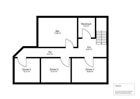
_Wohneinheit 1: 4-Zimmer-Maisonette:
_125 qm Wohnfläche mit 144 qm Nutzfläche
_Balkon in...
Weitere Informationen
Sonstiges
Alle graphischen Darstellungen und Bilder sind Eigentum von DAHLER Rosenheim, Inh.: PRIME HOUSE GmbH und dürfen nicht ohne ausdrückliche Zustimmung durch DAHLER Rosenheim weitergegeben oder verwendet werden. Alle Daten und Angaben basieren auf Informationen, die uns vom Auftraggeber zur Verfügung gestellt wurden...
Anbieter der Immobilie
DAHLER Chiemsee & Rosenheim - PRIME HOUSE GmbH
Weinstraße 2, 83022 Rosenheim

Online-ID: 2mwk25c
Referenznummer: DC-ROS-1571_2
Finde Angebote wie dieses
Hier geht es zu unserem Impressum, den Allgemeinen Geschäftsbedingungen, den Hinweisen zum Datenschutz und nutzungsbasierter Online-Werbung.