
VON POLL IMMOBILIEN Salzburg
Frau Astrid Mitterberger
004 ···
Nr. anzeigenPreise & Kosten
Provision für Käufer
3 % zzgl. 20% MwSt
Lage
Die Wohnung befindet sich in einem der beliebtesten Stadtteile Maxglan, an der Grenze zu Wals. Hier verbindet sich urbanes Leben mit hoher Lebensqualität und ruhiger Umgebung.
Die Salzburger Altstadt ist mit wenige Fahrminuten entfernt, ebenso wie der Flughafen und die Autobahnanbindung, ideal für Berufspendler oder...
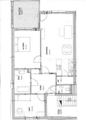
Die Wohnung
Wohnanlage
Energie & Heizung
Warum sehe ich diese Anzeige? – Du siehst diese Anzeige basierend auf Ihrer Navigation auf unserer Website und den Suchkriterien, die du verwendet hast.
Weitere Energiedaten
Energieträger
Pellets
Details
Objektbeschreibung
Diese moderne 3 Zimmer Wohnung im beliebten Stadtteil Maxglan überzeugt durch ihre durchdachte Raumaufteilung und schöne Ausstattung. Sie eignet sich für Singles, Paare oder kleine Familien.
Die Wohnung befindet sich im 1. Stock eines gepflegten Wohnhauses mit nur 5 Parteien - ruhig und überschaubar.
Der großzügig...
Ausstattung
- Baujahr 2016
- Hochwertige Küche mit Kochinsel
- XL Terrasse
- Fußbodenheizung
- 2 Schlafzimmer
- Küche und Bad möbliert
- teilweise Raffstores
- Bad mit Fenster & separates WC
- Abstellraum im Küchenbereich
- 1 Tiefgaragenstellplatz
- Großes...
Preisinformation
1 Tiefgaragenstellplatz
Weitere Informationen
Stichworte
Anzahl der Schlafzimmer: 2, Anzahl der Badezimmer: 1, Anzahl Balkone: 1, Balkon-Terrassen-Fläche: 10,65 m², Bundesland: Salzburg
Anbieter der Immobilie
VON POLL IMMOBILIEN Salzburg
Nonntaler Hauptstraße 59, 5020 Salzburg
Online-ID: 2mwkk59
Referenznummer: AM - 5112025
Finde Angebote wie dieses
Günstige Immobilienfinanzierung einfach online berechnen
Persönliches Angebot berechnenWarum sehe ich diese Werbung? – Du siehst diese Werbung basierend auf Deiner Navigation auf unserer Website und der von Dir verwendeten Suchkriterien.
Diese Werbung wird bezahlt von durchblicker
Werbung melden
Hier geht es zu unserem Impressum, den Allgemeinen Geschäftsbedingungen, den Hinweisen zum Datenschutz und nutzungsbasierter Online-Werbung.