

SCHULTHEISS Wohnbau AG
Frau Julia Antonia Kropp
091 ···
Nr. anzeigenDieses Angebot ist Teil des Neubauprojekts
Brauhöfe Erlangen – Premium-Wohnungen & Apartments in Bestlage – ausgezeichnet mit dem Zukunftspreis 2025
Preise & Kosten
Provision für Käufer
provisionsfrei
Lage
BRAUHÖFE ERLANGEN: Top-Lage im Herzen von Erlangen: Erstklassige Infrastruktur mit Einkaufsmöglichkeiten, Bildungseinrichtungen, Kunst- und Kultur sowie zahlreiche kulinarische Highlights, alles direkt vor der Türe. Die charmante Fußgängerzone, der idyllische Schlossgarten und der nahegelegene Bohlenplatz mit seinen...
Die Wohnung
Kategorie
Apartment
Wohnungslage
2. Geschoss
Bezug
Juni 2028
Wohnanlage
Das Neubauprojekt
Energie & Heizung
Warum sehe ich diese Anzeige? – Du siehst diese Anzeige basierend auf Ihrer Navigation auf unserer Website und den Suchkriterien, die du verwendet hast.
Energieausweistyp
Bedarfsausweis
Gebäudetyp
Wohngebäude
Baujahr laut Energieausweis
2028
Wesentliche Energieträger
Fernwärme
Effizienzklasse
A
Endenergiebedarf
40,50 kWh/(m²·a)
Weitere Energiedaten
Energieträger
Fernwärme
Haustyp
KfW 70
Heizungsart
Fußbodenheizung
Details
Objektbeschreibung
Im hochwertig sanierten Sandsteingebäude entstehen zwei individuelle Wohnungen sowie 14 Apartments, die historischen Charme mit moderner Wohnqualität verbinden.
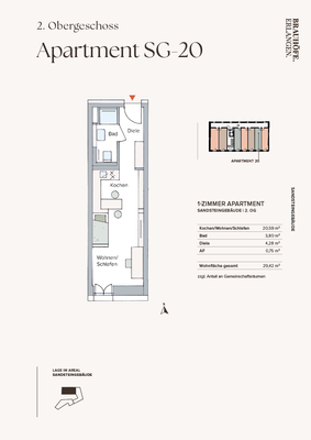
Im Gebäude gibt es auch noch weitere Apartments im 1. oder 2. OG zwischen 29,42m² und 36,57m² schlüsselfertige Kaufpreise von EUR 278.019,- und EUR 345.387,-...
Ausstattung
•Bad mit Dusche
•Offene Küche
•Kontrollierte Be- und Entlüftungsanlage
•Vinyl und Fliesenboden nach Mustervorlage
•Weitere Räume: Wasch-Trockenraum, Fahrradräume
•Gartenmitbenutzung
Als KfW-Effizienzhaus-Standard 70 EE mit Worst Performing Buliding-Bonus (WPB) erhalten Sie bei den Apartments und Wohnungen im...
Weitere Informationen
Informationen
Fordern Sie vorab Ihr persönliches Exposé mit Preisliste an. Telefonisch bin ich auch gerne unter Telefon 0911-34709172 oder mobil 0151-18 17 80 14 für Sie da.
Beste Grüße Julia A. Kropp
Anbieter der Immobilie

Online-ID: 2mwky5m
Referenznummer: SG 20 Julia Antonia Dez.
Finde Angebote wie dieses
Hier geht es zu unserem Impressum, den Allgemeinen Geschäftsbedingungen, den Hinweisen zum Datenschutz und nutzungsbasierter Online-Werbung.