
Volksbank Sauerland Immobilien GmbH
Herr Patrick Brüggemann
029 ···
Nr. anzeigenPreise & Kosten
Provision für Käufer
Keine Käuferprovision
Lage
Dieses Wohn- und Geschäftshaus wird im Zentrum von Meschede gebaut. In unmittelbarer Nähe befinden sich zahlreiche Einkaufsmöglichkeiten, Restaurants und Cafés. Auch Schulen, Kindergärten und Ärzte sind gut zu erreichen. Der Bahnhof Meschede ist fußläufig erreichbar, und die Anbindung an den öffentlichen Nahverkehr ist...
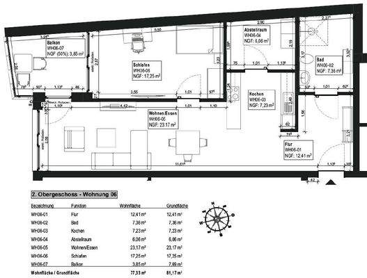
Die Wohnung
Wohnanlage
Details
Objektbeschreibung
Sie suchen eine Eigentumswohnung mitten im Zentrum der Stadt Meschede. Dann ist dieses Neubauprojekt genau richtig für Sie!
Es erwartet Sie eine topmoderne Wohnung, in einem toll durchdachten, energetisch optimierten Gebäude mit Personenaufzug und Garagenstellplatz.
Der ortsnahe, erfahrene Bauträger mit vielen...
Preisinformation
1 Garagenstellplatz
Weitere Informationen
Stichworte
Anzahl Balkone: 1, Anzahl der Wohneinheiten: 10, Bundesland: Nordrhein-Westfalen
Anbieter der Immobilie
Online-ID: 2mwlw57
Referenznummer: 0-8018880
Finde Angebote wie dieses
Hier geht es zu unserem Impressum, den Allgemeinen Geschäftsbedingungen, den Hinweisen zum Datenschutz und nutzungsbasierter Online-Werbung.