

Immobilienservice Maier Inhaber Johannes Maier e.K.
Herr Gerhard Biesinger
071 ···
Nr. anzeigenPreise & Kosten
Provision für Käufer
2,38 % des Kaufpreises inkl. ges. MwSt.
Bezugsgröße ist der notariell beurkundete Kaufpreis. inkl. MwSt.
Lage
Diese charmante Etagenwohnung befindet sich in einer äußerst begehrten und ruhigen Wohngegend von Marbach am Neckar. Die Stadt, gelegen in der malerischen Region des Landkreises Ludwigsburg, ist bekannt für ihre historische Altstadt und ihre literarische Bedeutung als Geburtsort des berühmten Dichters Friedrich...
Die Wohnung
Wohnungslage
Erdgeschoss
Bezug
Nach Kaufabwicklung
Wohnanlage
Energie & Heizung
Warum sehe ich diese Anzeige? – Du siehst diese Anzeige basierend auf Ihrer Navigation auf unserer Website und den Suchkriterien, die du verwendet hast.
Energieausweistyp
Bedarfsausweis
Gebäudetyp
Wohngebäude
Baujahr laut Energieausweis
2024
Wesentliche Energieträger
LUFTWP
Gültigkeit
bis 10.03.2034
Effizienzklasse
A+
Endenergiebedarf
20,10 kWh/(m²·a)
Weitere Energiedaten
Heizungsart
Luft-/Wasser-Wärmepumpe, Zentralheizung
Details
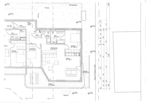
Objektbeschreibung
WILLKOMMEN in Ihrer neuen Traumwohnung in Marbach a. N.! Diese exquisite, neuwertige Etagenwohnung im Erstbezug bietet auf ca. 124 m² Wohnfl: ein stilvolles und modernes Wohnambiente. Die Immobilie aus dem Baujahr 2024 befindet sich in einem 8-Familienhaus und besticht durch hochwertige Ausstattung und barrierefreiem...
Ausstattung
Hochwertige, moderne und barrierefreie 3-ZIMMER-EG-WOHNUNG im 8-Familienhaus (KFW-Haus 55) mit Aufzug,
ERSTBEZUG!
WOHNUNG ca. 124 m² bestehend aus:
DIELE
LIVINGROOM ca. 45 m² Wohnen / Essen / Kochen
mit 4 Zugängen zum großzügigen L-förmigen Terrassen-Balkon (Süd- Ostseite)
mit Aus- und Fernsicht...
Preisinformation
1 Tiefgaragenstellplatz, Kaufpreis: 29.000,00 EUR
Weitere Informationen
Sonstiges
WICHTIG*WICHTIG*WICHTIG*WICHTIG*WICHTIG
Alle Angaben sind ohne Gewähr und basieren ausschließlich auf Informationen, die uns von unserem Auftraggeber zur Verfügung gestellt wurden. Wir übernehmen keine Gewähr für die Vollständigkeit, Richtigkeit und Aktualität dieser Angaben. Für die Richtigkeit der...
Anbieter der Immobilie
Immobilienservice Maier Inhaber Johannes Maier e.K.
Bahnhofstr. 41, 71691 Freiberg

Online-ID: 2mwps5a
Referenznummer: 2906Ma3_GB_Wohn_Verk
Finde Angebote wie dieses
Hier geht es zu unserem Impressum, den Allgemeinen Geschäftsbedingungen, den Hinweisen zum Datenschutz und nutzungsbasierter Online-Werbung.