Peter Hüfner Immobilien

Herrn Gianluca Vitiello

Ihr neues City- Büro ...

€ 690
Nettomiete zzgl. NK
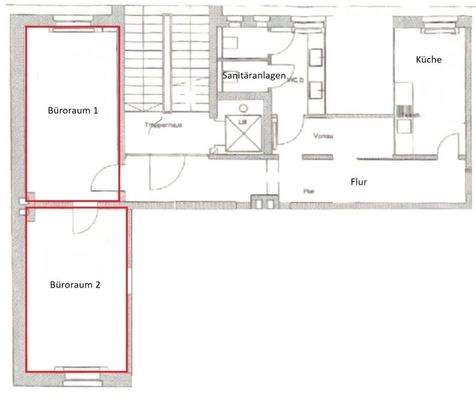
35 m²
Bürofläche ca.
k.A.
Teilbare Fläche
2
Zimmer

Der Anbieter dieses Objekts hat gegenüber der AVIV Germany GmbH als Betreiber dieses Online-Marktplatzes erklärt, nicht als Unternehmer im Sinne des § 1 KSchG zu handeln. Die im Verbraucherschutzrecht der Union verankerten Verbraucherrechte (insbesondere Informationspflichten und Rücktritts- bzw. Widerrufsrechte) finden auf den Vertrag zwischen dem Anbieter des Objekts und Ihnen (dem Interessenten) keine Anwendung.

Gewerblicher Anbieter

Der Anbieter dieses Objekts hat gegenüber der AVIV Germany GmbH als Betreiber dieses Online-Marktplatzes erklärt, als Unternehmer im Sinne des § 1 KSchG zu handeln.

AdresseStraße nicht freigegeben
90762 Fürth 
(Innenstadt)
Auf Karte ansehen

Preise & Kosten

Nettomiete € 690 Nebenkosten € 95 Warmmiete € 785

Provision für Mieter

Bitte beachte, das Angebot kann bei Vertragsabschluss die Zahlung einer Provision beinhalten. Weitere Informationen erhältst Du vom Anbieter.

Lage

einfach top
zentral
westliche Innenstadt
in einer ruhigen Seitenstraße
Nähe Fußgängerzone

Ein Standort mit guter Rundumversorgung und dem Vorteil der kurzen Wege.
Zum Bahnhof sind es ca. 6 Gehminuten, zur U-Bahn nur ca. 4 Gehminuten.
Die Bushaltstelle befindet sich in unmittelbarer Nähe.

Die Immobilie

info

Zu diesem Angebot wurden vom Anbieter keine weiteren Daten hinterlegt. Für weitere Informationen bitte den Anbieter kontaktieren.

Nach Informationen fragen

Details

Weitere Informationen

Courtage
2,38 Nettomieten inkl. ges. MwSt., fällig bei Vertragsabschluss

Details
Die Räume befinden sich im 3. Obergeschoss eines denkmalgeschützten Anwesens mit schöner Sandsteinfassade im Neurenaissance- Stil. Es handelt es sich um eine Teilfläche von ca. 35 m², die zur Untermiete angeboten wird.

Die...

Mehr anzeigen

Anbieter der Immobilie

Partner

Peter Hüfner Immobilien

im Durchschnitt  4,70  Sterne
(bei 41 Bewertungen)

Waagstr. 1, 90762 Fürth

user

Herrn Gianluca Vitiello

Dein Ansprechpartner

Anbieter-Profil Anbieter-Impressum

Online-ID: 2mws85x

Referenznummer: 4617

Finde Angebote wie dieses

imageimageimage

Hier geht es zu unserem Impressum, den Allgemeinen Geschäftsbedingungen, den Hinweisen zum Datenschutz und nutzungsbasierter Online-Werbung.